Выбор планировки
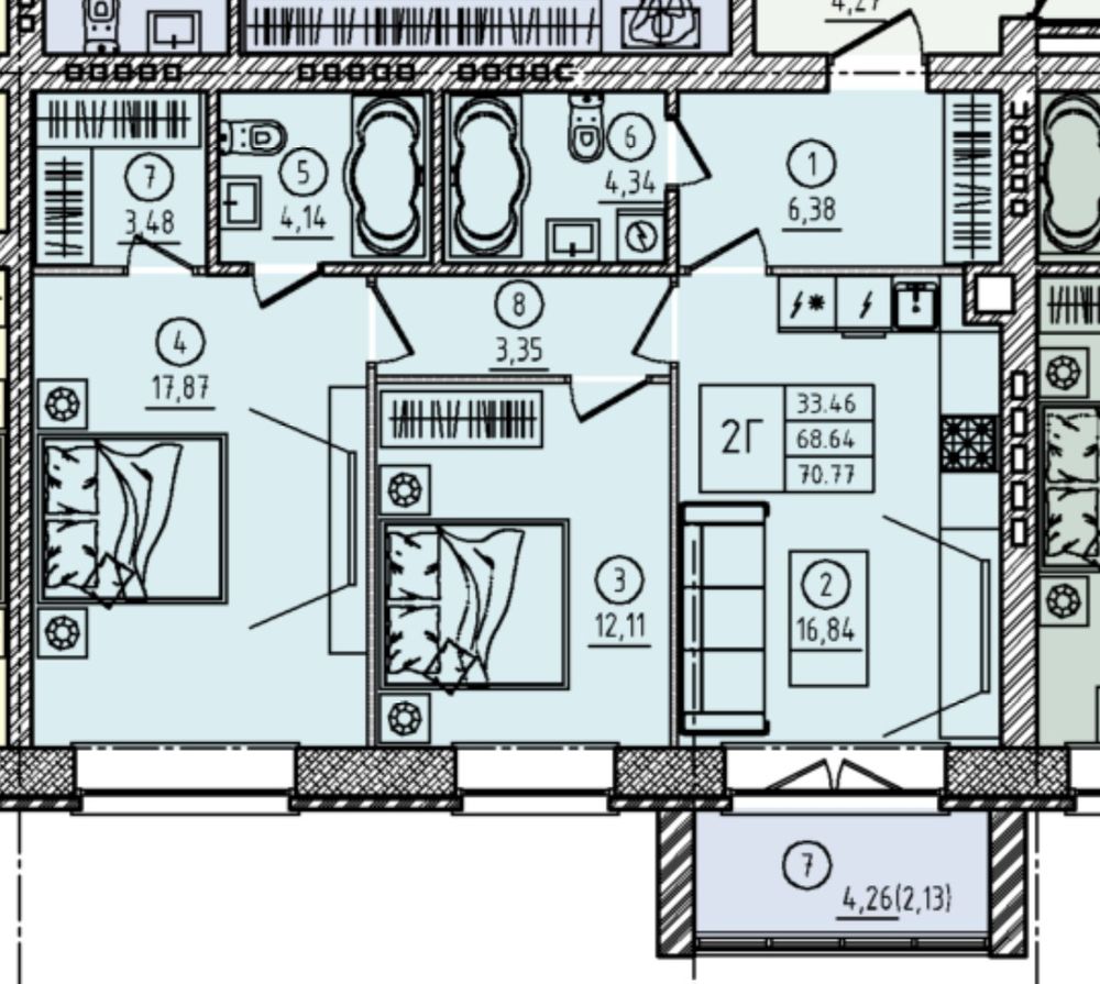
Перепланировки стен. Согласование перепланировки квартир и нежилых помещений.Здравствуйте! Очень нужен совет какую планировку Вы бы предпочли (3-шку с узкими длинными комнатами) или двушку с короткими квадратными для семьи из 2 взрослых+ребенок 9 лет. Нужно организовать рабочую зону для папы (комп.стол) и иметь свободное пространство для приема гостей. В трешке смущает что комнаты смотрят на соседний дом (20 метров максимум-см фото) в 2-шке на простор с природой (застройки не будет т.к. уже все занято низкими частными домами). Но в 2-шке нет 3-ей комнаты для гостей и комп стола.



Лучший ответ
Анна Волкова
Трёшка с перепланировкой. Убрать вход на кухню с придворного коврика, сократить площадь комнаты, которая граничит с кухней, чуть увеличив коридор, и сделать вход в кухню там. Комната будет поменьше, но для кабинета мужа или приема гостей будет в самый раз. Спальни сделать по двум отдельным сторонам. Трёшка распашонка - это лучше, чем линейная двушка.
19.10.2024
Ответить
Лея
В трешке отличные просторные комнаты. На мой взгляд, если вам нужна и гостевая комната и рабочее место мужу, то трешка однозначно. В двушке на 16 метрах кухню и гостиную совместить получится конечно, но все будет ооочень компактным.
У двушки сама планировка очень интересная, мне понравилось. Вид из окна это несомненно плюс. Но трешка - это намного больше места и пространства, разница ж почти 20 метров.
А район у домов один? Если разные, то еще выбрать хорошо именно более удобный район.
19.10.2024
Ответить
Анастасия
Лея, вообще дом один и район один, мы сейчас живем в соседнем доме и принципиально тут остаться хотим…
20.10.2024
Ответить
Libe
Почему то двушка привлекает больше....
Если уверены, что не захотите еще одного ребёнка, то и в двушке организовать можно хорошо пространство.
Еще мне нравится, что можно сделать один санузел без душа, но организовать там зону стирки и сушки. А рабочий стол например на балконе поставить, да и в комнате место хватит.
18.10.2024
Ответить
Анастасия
Libe, спасибо, у двушки и инсоляция хорошая и вид из окна вот такой (там санаторий), тоже решили все таки ее брать
20.10.2024
Ответить
Надежда
Мне кажется, зависит от того, часто ли вы принимаете гостей, планируете ли ещё детей, нужен ли кабинет для работы мужа. Если ответ да на каждый из этих вопросов, то, конечно, нужна трешка.
Если же нет, то и двушкой обойдетесь.
Важно ещё понять, какая цена и площадь. Если примерно одинаковая, то практичнее сделать выбор в пользу большего числа комнат.
Плюс, мне, конечно, кажется, в квартире из 2-3 комнат оборудовать отдельную для гостей - это неоправданная роскошь! Считайте, треть квартиры для чужих людей купили. Хотя, смотря,кого вы называете гостями. Плюс это Ваше дело, конечно. Написала, потому что какие-то вещи мы порой не сразу осознать можем (ну, я, например).
18.10.2024
Ответить
Я
Планировка двушки мне больше понравилась. И отдельная гардеробная, и 2 полнометражных сан узла, и кухня+гостиная не узкая. Ну и вид естественно, наверняка она еще и дешевле)
18.10.2024
Ответить
Анастасия
Я, да Вы правы дешевле правда ненамного, потому что видовая квартира:(
18.10.2024
Ответить
Анастасия
Да я тоже за балкон на кухне) надо только понять где делать раб.зону с компьютером мужу/т.к. я устала что он работает в нашей спальне(
18.10.2024
Ответить
Я
Анастасия, а, если не в спальне то остается только гостиная. А если брать 3ку то можно полноценно оставить кухню только кухней, а одну спальню выделить как гостиная. И туда же мужа с рабочим столом 😀
18.10.2024
Ответить
Я
Анастасия, рабочую зону для мужа можно организовать у окна в спальне. Есть такие деревянные подоконники плавно перетекающие в стол. На окнах римские шторы, или рулоновые жалюзи, и без штор. В 2ке еще прихожая не узкий коридор, это тоже плюс, так как можно комфортно установить шкаф купе и мебель для прихожей
18.10.2024
Ответить
Elena
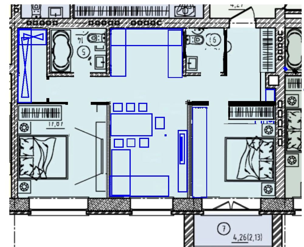
Если вы склоняетесь к двушке, то можно такой вариант перепланировки рассмотреть:
Только нужен толковый дизайнер, который посмотрит и оценит эту перепланировку с точки зрения ее возможности. Но вроде бы я постаралась учесть возможность переноса мокрой зоны. И обычно, комнаты на месте кухни называют кабинетами. В С/у у входа хорошо бы разместить и душевую кабинку хотя бы. Но это уже надо прорабатывать с дизайнером.
Только нужен толковый дизайнер, который посмотрит и оценит эту перепланировку с точки зрения ее возможности. Но вроде бы я постаралась учесть возможность переноса мокрой зоны. И обычно, комнаты на месте кухни называют кабинетами. В С/у у входа хорошо бы разместить и душевую кабинку хотя бы. Но это уже надо прорабатывать с дизайнером.
20.10.2024
Ответить
Анастасия
Elena, спасибо! Но наверное не получится саму кухню перенести, там газовый котел установлен и балкон удобно что из кухни…
22.10.2024
Ответить
selena1002
Анастасия, доброй ночи! А Вы уверены, что нужна комната для гостей? В трешке меня смущает то, что гостиной, как таковой, там тоже нет. Т.е., и в трешке и в двушке есть только кухня-гостиная.
19.10.2024
Ответить
Анастасия
selena1002, я думаю наверное размещу гостей на кухне), все таки больше уже склоняюсь а двушке. Какой у Вас интересный расклад на рисунке, спасибо!
19.10.2024
Ответить
selena1002
Анастасия, добрый день! Можно и на кухне). Кстати, балкон можно к ней присоединить. Я просто убрала лишние двери и сделала нормальные транспортные пути - транзит, а то, что это за вход в квартиру через кухню. Кто так делает? Наверное, современные "архитекторы". У меня были проекты квартир с саншкафами на лестничной клетке, но такое "чудо" вижу впервые. И в "темной" комнате можно сделать кабинет, а на стене, где телевизор, наверху расположены небольшие окна с фрамугой для ее освещения и проветривания. И оставить гостевой туалет. Могу помочь с планировочным чертежом).
20.10.2024
Ответить
Оставшиеся комментарии доступны после регистрации
Зарегистрируйтесь и получите полный доступ ко всем функциям сайта.