Прошу совета как что лучше разместить??
Вопросы и ответыПланируем приобрести трешку без ремонта. Хочется максимально использовать пространство. Так как трое детей. Младшей 1 год. Она пока с нами. Но играть планируем на кухне. В коридоре нужно место для велосипедов. Решили сделать из большого су два, а другой под кладовку. И очень раздражает коридор в одной комнате. Не знаем, что с ним сделать. Беду благодарна советам🙏

Лучший ответ
Elena
Можно попробовать рассмотреть вариант, где этот коридорчик вы превращаете в проходную гардеробную.
31.05.2025
Ответить
selena1002
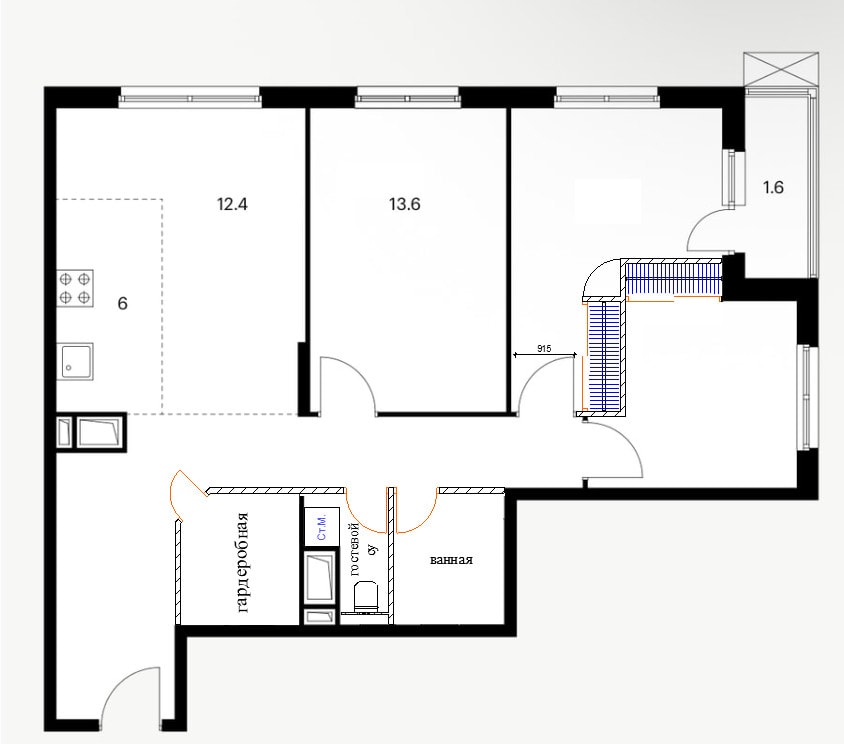
Добрый день! У Вас очень хорошая квартира, почти нет несущих стен. Можно сделать вот так, например:
Тогда коридор в комнате расширится и еще будет использоваться). А за балконной дверью все равно можно ставить только шкаф, поэтому можно отдать под шкаф соседней комнате.) А под велосипеды вполне достаточно места в прихожей, или можно сделать специальное место для них в гардеробной. Для них же есть специальные устройства подвеса чуть ли не на потолок. Если нужно, могу помочь с планировкой и с чертежами.
Тогда коридор в комнате расширится и еще будет использоваться). А за балконной дверью все равно можно ставить только шкаф, поэтому можно отдать под шкаф соседней комнате.) А под велосипеды вполне достаточно места в прихожей, или можно сделать специальное место для них в гардеробной. Для них же есть специальные устройства подвеса чуть ли не на потолок. Если нужно, могу помочь с планировкой и с чертежами.
31.05.2025
Ответить
ribka777
selena1002, спасибо, буду иметь ввиду) стен там вообще пока нет. Только схематично. Поэтому хотим максимально продумать до начала ремонта
31.05.2025
Ответить
selena1002
ribka777, не за что! Обращайтесь, для этого как раз и нужен дизайнер))
31.05.2025
Ответить
В ж и к
ribka777,
Немного конечно. Столько пространства съедается коридором. Если отделить спальни и коридор использовать, как гостиную. Входы в комнаты и с/у перенести .
Немного конечно. Столько пространства съедается коридором. Если отделить спальни и коридор использовать, как гостиную. Входы в комнаты и с/у перенести .
31.05.2025
Ответить
Анна
По-моему, ничего менять в планировке не надо. Большую комнату - отдать мальчикам, комнату с балконом - вам под спальню, маленькую комнату рядом - дочери. В приходей - шкаф во всю стену до потолка.
Туалет можно под кладовку. Но тогда санузел оставить только один. Для такой большой семьи маловато, а разделите - будет тесный
30.05.2025
Ответить
Анна
Нет замеров. Но идея такая :
Заходим и слева длинный шкаф. Чуть передвигаем влево стенку су и делим его на 2 части. Часть 1: минимально узкий туалет (разворачиваем прям к стояку ) и небольшая раковина. И рядом увеличенная кладовка. Можно в угол запихнуть колонной стиралку сушилку. Ну и место под велики. Наверное надо длинные стены оставить под возможность навешивать велосипеды.
Переходим к спальням, ну только как то поиграть с передвижением стены и сделать шкафы с гардеробной. Лоджия под кабинет.
Это ваша спальня, что с балконом. Большая спальня для мальчишек, малая спальня девочке, или игровая, ну и кухня.
30.05.2025
Ответить
ribka777
Анна, вот у этой комнате с балконом вряд ли поставить большую кровать☹️ там и окно, и дверь на балкон
30.05.2025
Ответить
Sofia
Без перепланировки вы с этим коридором в спальне ничего и не сделаете, можно только уменьшить размер большой спальни и так уберется коридор в комнате и будет больше места в холле, но я так понимаю у вас в той комнате 2 мальчишек будут жить - место должно быть все таки предостаточно. Сделать из второго туалета кладовку - по-моему отличная идея. Я бы даже может постирочную туда вынесла, вода и канализация там предусмотрены. Хранить велики в коридоре квартиры я бы не стала - это постоянная грязь, но дело ваше. Я бы лучше слева от входа большой шкаф купе сделала, туда бы очень много чего поместилось бы
30.05.2025
Ответить
ribka777
Sofia, большой холл нам наоборот не нужен. Бесполезное место. Лучше в комнатах. Велосипеды хранить будем на балконе, но когда они катаются, нужно место в коридоре, чтобы припарковать, а не тащить каждый раз через всю квартиру грязный
30.05.2025
Ответить
Sofia
ribka777, а на лестничной площадке нет места для хранения? Либо на первом этаже. Мы, когда жили в квартире, хранили велосипеды/самокаты на 1 этаже (не только мы, это было место общего пользования и все там оставляли свой транспорт)
30.05.2025
Ответить
ribka777
Sofia, холл на множество квартир и неизвестна адекватность соседей)) у брала на этаже ругались за детскую коляску. Что это не место для хранения🙄
30.05.2025
Ответить