Прошу совета как расставить стены
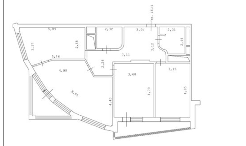
Вопросы и ответыДевочки, есть еще такой вариант квартиры. Она, конечно, большая и окна есть. Но вот как тут стены поменять, чтобы и 4 комнаты было, и кухня просторная? Имеются три ребенка. В идеале ходим 4 комнаты на такой площади. Два туалета и просторную кухню-гостиную. Несущих стен вроде как нет. Сейчас кухня в левом верхнем углу. Может ее перенести в правый угол?

Лучший ответ
Dashushonok
Кухню нельзя просто так переносить. Не должно быть кухни соседа к кого-то над спальней
11.06.2025
Ответить
ribka777
Dashushonok, а тут так и получается. Наверху я знаю кухня справа. А в этой квартире слева. Мы рассматриваем ее покупку. И вот по документам нигде не обозначена мокрая зона. Как понять, как правильно?
11.06.2025
Ответить
Анастасия
Так самая большая комната за счёт количества окон позволяет без проблем на 2 разделить
11.06.2025
Ответить
ribka777
Embri, я так понимаю, можно делать где стояки. Вок либо слева, либо справа
11.06.2025
Ответить
selena1002
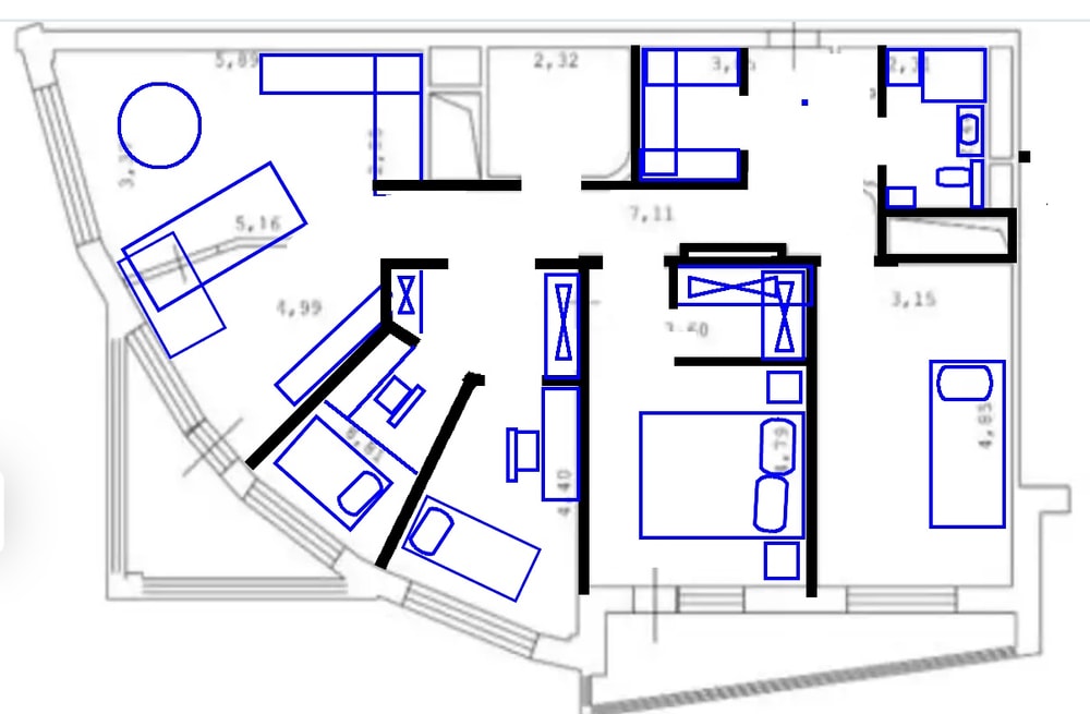
Добрый день! Я думаю, что не стоит переносить кухню, т.к. коммуникации в стояке рядом сделаны именно для кухни, например, вентиляция. Она не должна идти по трассе для санузлов. Я бы предложила вот такую планировку, правда, будет коридорная система:
Стену 4, 40 м я бы немного перенесла вправо, так, чтобы ширина комнаты справа не была меньше 3-х метров. И немного "утопила" бы в этих комнатах дверные проемы, чтобы сделать шкафы и одновременно немного расширить коридор. Треугольная комната, конечно, не так удобна, здесь можно еще подумать. А балкон нельзя к ней присоединить? И, думаю, что в квартире есть несущие элементы, я обвела красным. Части стен справа и слева от него тоже могут быть несущими.
Стену 4, 40 м я бы немного перенесла вправо, так, чтобы ширина комнаты справа не была меньше 3-х метров. И немного "утопила" бы в этих комнатах дверные проемы, чтобы сделать шкафы и одновременно немного расширить коридор. Треугольная комната, конечно, не так удобна, здесь можно еще подумать. А балкон нельзя к ней присоединить? И, думаю, что в квартире есть несущие элементы, я обвела красным. Части стен справа и слева от него тоже могут быть несущими.
16.06.2025
Ответить
ribka777
selena1002, спасибо большое!!! Это, наверное, лучший вариант! Посмотрю в реале, что там можно будет разместить
17.06.2025
Ответить
selena1002
ribka777, добрый день! Не за что! Обращайтесь). Посмотрите, конечно, можно мелом на полу чертить. Если хотите, могу помочь с чертежами.
24.06.2025
Ответить
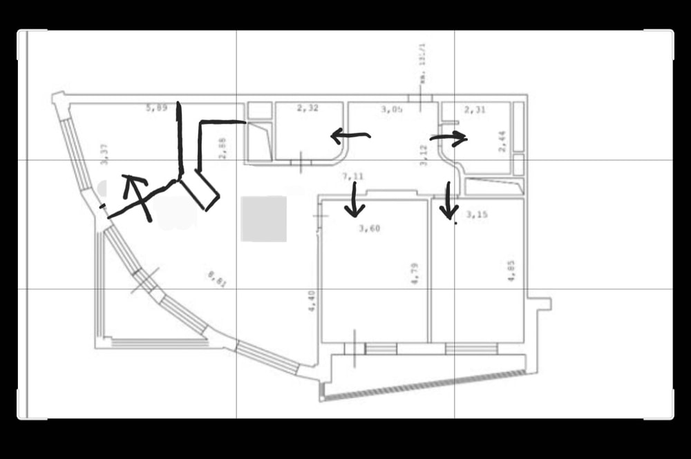
Дарья (планировки, дизайн интерьера)
Я бы предложила общую зону кухни-гостиной разместить ближе ко входу в квартиру, в правый угол. А приватные зоны комнат в левой части квартиры. У планировки есть потенциал, если все грамотно спланировать несколько вариантов, ориентируясь на потребности и образ жизни вашей семьи
14.06.2025
Ответить
Elena
Может быть как-то так:
В маленьких детских я бы предложила поставить кровати-подиумы у окон. Примерно такого плана:
Лучше в этом плане поработать с профессиональным дизайнером, чтобы она проработала перепланировку по размерам.
В маленьких детских я бы предложила поставить кровати-подиумы у окон. Примерно такого плана:
Лучше в этом плане поработать с профессиональным дизайнером, чтобы она проработала перепланировку по размерам.
12.06.2025
Ответить
В ж и к
Если еще не купили, то и не надо. Ее потом не продашь с такой геометрией
12.06.2025
Ответить
Зинаида
Зинаида, а по метрам сами считайте. Я такое не сосчитаю. Надо понимать состав семьи и их предпочтения.
11.06.2025
Ответить
Зинаида
Если вам не нужна большая кухня и большая спальня, то можно поделить верхний левый угол пополам, а стену со входом в кухню-гостирую я б вооьще убрала. И вход в санузел и 2 спальни сделала бы из прихожей.
Но это будет миникухня. Сейчас во многих квартирах мини-кухни. Мне не нравится мини-кухня. А вот люди берут такие квартиры с кухонными закутками по 5 м2
11.06.2025
Ответить
Оставшиеся комментарии доступны после регистрации
Зарегистрируйтесь и получите полный доступ ко всем функциям сайта.