Студия для молодого человека
Интерьерное решение жилых помещений.Приветствую!
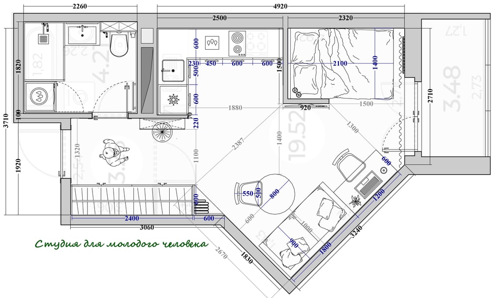
Может быть кто-то подскажет как более органично использовать данный угол?

Лучший ответ
sunny
Спальное место туда, больше его всё рпано некуда...
18.10.2025
Ответить
Никто не бородавочник
может типа такого, красное это диван, а за ним стол высокий с барными стульями
может типа такого, красное это диван, а за ним стол высокий с барными стульями
18.10.2025
Ответить
Frida
Никто не бородавочник, мне нравится. Выпил, перевалился за стол и упал прямо в подушки... 😎
18.10.2025
Ответить
Frida
Никто не бородавочник, если непьющий, там компьютерную установку. И тоже в центр комнаты - восседать как на троне. 😁
Мне на самом деле концепция нравится. Можно будет диван разложенным держать и не особо видно будет. Плюс минимальное зонирование без перегородок.
Но вопрос к метражу, хватит ли места....
19.10.2025
Ответить
Никто не бородавочник
Или можно повернуть все, а вместо барного стола сделать круглый у балкона)
18.10.2025
Ответить
Дарья
Добрый вечер! Предложу такой вариант деления комнаты на зоны: кухня, гостиная-столовая-кабинет, спальня. При такой расстановке кровать не видна при входе, что, на мой взгляд, создаёт наиболее привлекательный общий вид.
21.10.2025
Ответить
Надежда (Питер)
Дарья, благодарю !🌹
Очень интересный вариант. Даже не верится,что всё это может уместиться.
22.10.2025
Ответить
Дарья
Надежда (Питер), рада помочь!
Если не ставить несоразмерный площади помещения угловой диван, то всё это:)) вполне гармонично можно разместить и даже место для фитнеса останется))
22.10.2025
Ответить
selena1002
Дарья, что в очередной раз пользуетесь чужими идеями? Вам не привыкать. А 1,34 м "за кормой " потеряли? Умора)
Насколько я вижу, несоразмерно только Ваше эго, а не угловой диван.
Насколько я вижу, несоразмерно только Ваше эго, а не угловой диван.
26.10.2025
Ответить
Дарья
selena1002, плохо видите. Будьте добры, конкретизируйте - предоставьте доказательства того, что я использую чьи-то идеи, и объясните, где мной потеряны 1,34м. Иначе всё сказанное вами можно интерпретировать как своеобразный реванш по причине потери вами заказчика в лице Надежды, очередную попытку удовлетворить свое тщеславие, используя всевозможные способы, в .т.ч. провокацию, оскорбление и ложь. Вы же не скрываете, что отчасти цель вашего нахождения на данной площадке - проф.деятельность и продвижение. Только вы снова не учли, что сообщество гораздо сложнее ввести в заблуждение, чем при общении тет-а-тет. Ранее на другом небезызвестном дизайн сайте вы аналогично высказывали подобные необоснованные критические замечания, пока сообщество не указало вам на очевидные ошибки и возможные последствия за публичное оскорбление деловой репутации. На что вы попросту отмалчивались, а далее трусливо сбежали и завели новый профиль... Нет желания сменить тактику, прекратить выступать цензором и начать с себя?
Для начала внимательно изучите план, а лучше начертите его в масштабе, удивитесь, размеры не соответствуют действительности. Плохо, что профи не владеет навыками объемного восприятия, что приводит к проблемам с пропорциями, т.е. опять с соразмерностью: 254 никак не =306, 306 длины стены прихожей, указанных на плане, никак не =324 длины стены комнаты, более того, стена прихожей не =254, а гораздо меньше, т.о. 306 скорее включает в себя указанные 134, а остаток =172 - это длина стены прихожей + простенка. Хотите это оспорить? Запросите обмерный план у Надежды.
Мной было предложено планировочное решение (уточню, в масштабе!) удовлетворяющее потребностям проживающего, включающее мебель стандартных размеров, эргономичные расстояния, как итог - функциональная легкореализуемая (визуализация в помощь) концепция, что собственно предполагает рациональное использование пространства с учетом пропорций и эргономики. Если вам оно не подходит, ок, проходим мимо... Повторюсь, функциональная и легкореализуемая, опять же, в отличие от вашей идеи, где, напомню, в просматриваемой от вх. двери транзитной зоне по центру на потолочном кронштейне висит ТВ в 2,5м (в лучшем случае) от стены с угловым диваном ~2,5*1,6 (кстати, он у вас не в масштабе, узкая глубина подушек-сидушек), который, повторюсь, несоразмерен данному помещению, т.к. не позволяет поставить полноценный рабочий стол, который для студента очевидно нужнее данного дивана при наличии кровати, да и тв молодежь не смотрит (и ранее сказано было это в контексте предложенного мной варианта, не надо додумывать за других). Также как и очевидно, что предложенная вами ТВ-конструкция может устанавливаться только в просторных помещениях с высокими потолками и не в месте основного трафика, что собственно показано на ваших же примерах.
Вопросы: 1) допустим, высота потолка в студии = 3 м. Какой диагонали и на какой высоте следует разместить ТВ, чтобы он не препятствовал проходу и обеспечивал комфортный просмотр с дивана с расстояния 2,5м без необходимости задирать голову? 2) какой длины д.б. кух. гарнитур, чтобы между ним и кроватью поместился стеллаж и осталось свободное место для готовки (пользования шкафами - т.е. не менее 70-80см) и обеденного стола (диаметром -?) на три персоны, как показано на вашем плане, учитывая: длину стены помещения = 492, общепринятые размеры мебели + наличие радиатора отопления +/-штор?
Если дочитали до конца, смогли правдиво ответить на вопросы в т.ч. касательно комфортной эргономики, но всё еще переживаете за моё эго, то мне искренне жаль ваших клиентов.
27.10.2025
Ответить
selena1002
Дарья, доброе утро! Покажите мне, пожалуйста, этот размер1, 34 на Вашем чертеже. Он должен идти сразу после 3,06, а у Вас его нет. У Вас до угла стоит 3 060. Может быть, это Вы не видите? 3 060 + 1 340 = 4 400 мм до угла. Если Вы присоединили размер на чертеже, то и его обозначение должно быть другим.
А говорите, что сделали в масштабе. Я так понимаю, размерный план Вы у Надежды запросили или пользовались своим "объемным" восприятием? План от застройщика вообще штука эфемерная, на нем только цифрам размеров можно верить и то не до конца. О каком еще восприятии здесь может идти речь. И Вы как-то странно манипулируете размерами, свалили все размеры в одну кучу. Причем здесь размер ширины прихожей 2, 54? Речь о длинах идет. Что ж тут оспаривать, все и так очевидно). И для доказательств чего-либо и ответов на Ваши вопросы нужно делать план с расстановкой в масштабе. Я же об этом и не думала, дала только идею, концепцию, диванчик - это просто модель. А Вы про какие-то подушки на нем)). Вы не знаете этапов проектирования? На 1 этапе все условно, более конкретное все ставится на 2-м этапе, желательно после подбора. Что касается проф. деятельности, Вы-то перекочевали в это сообщество с какой целью? Фантазия у Вас богатая, это я уже поняла, но лучше использовать ее в своих проектах. Только я никуда позорно не сбегала, не всегда есть время для форумов. И как-то при входе пришлось сменить пароль и система изменила ник сама. А насчет сообщества, кажется Вы считаете сообществом себя?). Как, корона не задевает еще дверной проем?)) Я бы может и сделала так, но сейчас нет времени, да и сайт поменялся кардинально. Что касается телевизора, то для удобства просмотра его поворачивают наклонно:
А потом можно повернуть его параллельно потолку, или он убирается в нишу. Кронштейн управляется пультом. Если Вам не нравятся мои идеи, я буду счастлива. И их я предлагаю совсем не Вам, (упаси Боже), если Вы заметили. И не стоит жалеть моих заказчиков, жалейте лучше своих, Вы же им чертежи делаете в RemPlanner и считаете их профессиональными. Как им можно верить? Скажите, вот мне не разрешено додумывать за других (хотя мне все время приходится это делать, и даже думать вперед других), а Вы, получается, себе даете такое разрешение? Эту полемику я более продлевать не намерена, не сочтите опять, что я сбегаю. Как говорится: Из двух спорящих..."
А говорите, что сделали в масштабе. Я так понимаю, размерный план Вы у Надежды запросили или пользовались своим "объемным" восприятием? План от застройщика вообще штука эфемерная, на нем только цифрам размеров можно верить и то не до конца. О каком еще восприятии здесь может идти речь. И Вы как-то странно манипулируете размерами, свалили все размеры в одну кучу. Причем здесь размер ширины прихожей 2, 54? Речь о длинах идет. Что ж тут оспаривать, все и так очевидно). И для доказательств чего-либо и ответов на Ваши вопросы нужно делать план с расстановкой в масштабе. Я же об этом и не думала, дала только идею, концепцию, диванчик - это просто модель. А Вы про какие-то подушки на нем)). Вы не знаете этапов проектирования? На 1 этапе все условно, более конкретное все ставится на 2-м этапе, желательно после подбора. Что касается проф. деятельности, Вы-то перекочевали в это сообщество с какой целью? Фантазия у Вас богатая, это я уже поняла, но лучше использовать ее в своих проектах. Только я никуда позорно не сбегала, не всегда есть время для форумов. И как-то при входе пришлось сменить пароль и система изменила ник сама. А насчет сообщества, кажется Вы считаете сообществом себя?). Как, корона не задевает еще дверной проем?)) Я бы может и сделала так, но сейчас нет времени, да и сайт поменялся кардинально. Что касается телевизора, то для удобства просмотра его поворачивают наклонно:
А потом можно повернуть его параллельно потолку, или он убирается в нишу. Кронштейн управляется пультом. Если Вам не нравятся мои идеи, я буду счастлива. И их я предлагаю совсем не Вам, (упаси Боже), если Вы заметили. И не стоит жалеть моих заказчиков, жалейте лучше своих, Вы же им чертежи делаете в RemPlanner и считаете их профессиональными. Как им можно верить? Скажите, вот мне не разрешено додумывать за других (хотя мне все время приходится это делать, и даже думать вперед других), а Вы, получается, себе даете такое разрешение? Эту полемику я более продлевать не намерена, не сочтите опять, что я сбегаю. Как говорится: Из двух спорящих..."
28.10.2025
Ответить
Дарья
selena1002, добрый! Да, да, «из двух спорящих один - дурак, а другой - подлец», мне ближе Сократ. Уж поверьте, мне тоже не доставляет никакого удовольствия ни читать, ни писать подобные опусы, время жалко.
Вы же не будете отрицать, что провокатором подобного рода конфликтов, критиком предложений как здесь, так и на упомянутом «Хузз» являетесь вы, поэтому фразу про корону слышать от вас как минимум странно, может, сами претендуете на неё, помнится, «мои лайки» вам тоже покоя не давали:) Или вы полагаете, что ваши необоснованные замечания, зачастую в грубой и циничной манере, человек должен терпеть без возражений? Вы не в курсе, что есть форумное сообщество? Причем здесь я. Действительно жаль, что нет возможности восстановить хуззовский чат, где вы с явным упорством «били» одного и того же человека, и на это тогда у вас время находилось, а выслушать сторону вступившихся за оппонента, пытавшегося отстоять свою репутацию, продолжить конструктивный диалог - нет, что мешало вам под другим ником продолжить общение? В общем, всё и так понятно, просто ушли от ответа, т.к. возразить большинству было нечем.
«Вы-то перекочевали в это сообщество с какой целью?» Перекочевала... Во-первых, для меня, как и большинства присутствующих мамочек, актуально общение на общие проблемные темы, возможность получить рекомендации, а во-вторых, мне нравится работать с планировками, помогать людям. Такой вариант ответа вас устроит?
Нет, я ничего не просила у Надежды, также как и Надежда не обращалась ко мне за разъяснением размеров. Да, я утверждаю, что представленный мной вариант выполнен в масштабе, план вычерчен согласно имеющихся данных, кот. достаточно для работы с планировкой. Зачем я должна показать 1,34, а за ним 3,06 в сумме 4,40, кот. попросту там быть не может, мне так и неясно, они погоды не делают. «Причем здесь размер ширины прихожей 2,54?» Возможно, план от застройщика штука и эфемерная, но на нем кроме размеров имеются площади, или вы их тоже игнорируете, как и пропорции? Площадь прихожей указана 3,26 м2, несложно посчитать: 3,06*2,54=7,77 м2, или же 3,26:3,06=1,06 м - д. б. ширина прихожей при длине в 3,06. Ни 7,77 м2, ни 1,06 м не соответствуют данным плана, пропорциям помещения. Отсюда логические рассуждения, 3,06 не может быть длиной прихожей, но может быть суммой длин прихожей и части комнаты, либо он вовсе ошибочный. Остались вопросы по плану, чертите или запросите обмерный.
«И для доказательств чего-либо и ответов на Ваши вопросы нужно делать план с расстановкой в масштабе. Я же об этом и не думала, дала только идею, концепцию, диванчик - это просто модель.»
«Если Вам не нравятся мои идеи, я буду счастлива. И их я предлагаю совсем не Вам (упаси Боже), если Вы заметили.»
Вот это поворот! А я так надеялась... Слабая попытка замаскировать очередное оскорбление. Правильно я вас понимаю, вы можете только дать идею, которую без всяких условностей нужно признать верной и вопросы здесь излишни, а то, что предлагается другими, должно пройти через вашу цензуру, потому как планам, по вашему же мнению, выполненным в непрофессиональной RemPlanner, верить нельзя. Зачем вы мне навязываете ее, причем не первый раз? Видимо, по этой же причине ищете, чем зацепить - то размеры не те, то не в масштабе, то идеи не мои... А чьи? - сказать не можете. Так получается? Из вашей же логики следует, что только тем, кто освоил, работает с Archicad, Revit... или в той же, что и вы, верить можно, т.к. априори ошибок там быть не должно... Справедливости ради замечу, что вы ни разу не предоставили свои проф. чертежи, чтобы рассуждать о моих как о непрофессиональных.
Мне все равно на предлагаемые вами идеи, и этого конфликта вовсе не случилось бы, если бы вы нашли силы пройти мимо моих, но раз пошла такая пьянка..., то идею ТВ на кронштейне, свисающем по центру комнаты считаю плохой, рано или поздно, забыв поднять/повернуть... в ночном походе от кровати до су его снесут. Я обладатель подобной (вынужденной) конструкции, но она расположена в углу комнаты, для комфортного просмотра диван должен стоять в не менее 3-х метрах от ТВ, да, наклонное положение немного спасает, но и сам ТВ у меня 50" (должен находится), по факту висит достаточно низко ~ 1,4-1,6м от пола.
P.S.: Надежда, прошу прощения за оффтоп.
selena1002, хотите продолжения, переходите в личку.
29.10.2025
Ответить
Галина23
Кровать, конечно, хорошо, но молодым и диван сойдет. В угол диван( на нем можно и спать и сидеть), напротив рабочее место или тв зону, или обеденный стол. Смотря что ему надо
19.10.2025
Ответить
selena1002
Надежда (Питер), добрый день! Спасибо! Обращайтесь, помогу с проектом).
Да, тв там на потолочном кронштейне.
Купить Потолочный кронштейн NB T560-15 недорого в Санкт-Петербурге с доставкой и гарантией | FormulaTV
19.10.2025
Ответить
Frida
Кровать и закрыть зону деревянными рейками, только чтобы поток света не пересекало.
18.10.2025
Ответить
Елена0010
Поставить кровать, зонировать её стенкой или стеллажом , например, со стороны кухни стол.
Или где 1,83 раб стол, а рядом откидывающуюся кровать + шкаф
18.10.2025
Ответить
Оставшиеся комментарии доступны после регистрации
Зарегистрируйтесь и получите полный доступ ко всем функциям сайта.