Квартира для семьи из 4 человек 64 м2
Авторские проекты дизайнеров.(Посты не по теме будут удаляться!)Доброго дня всем , квартира от ПИК 3х комнатная евро .

Она уже шла от застройщика с отделкой, но заказчики изначально хотели переделать все под себя .
И был там самый огромный минус это отопление, которое шло в плинтусах , эту проблему мы тоже исправили .

Перепланировка была минимальной , но мы заново возводили стены в санузлах и расширили проем в кухню-гостиную .
План от застройщика

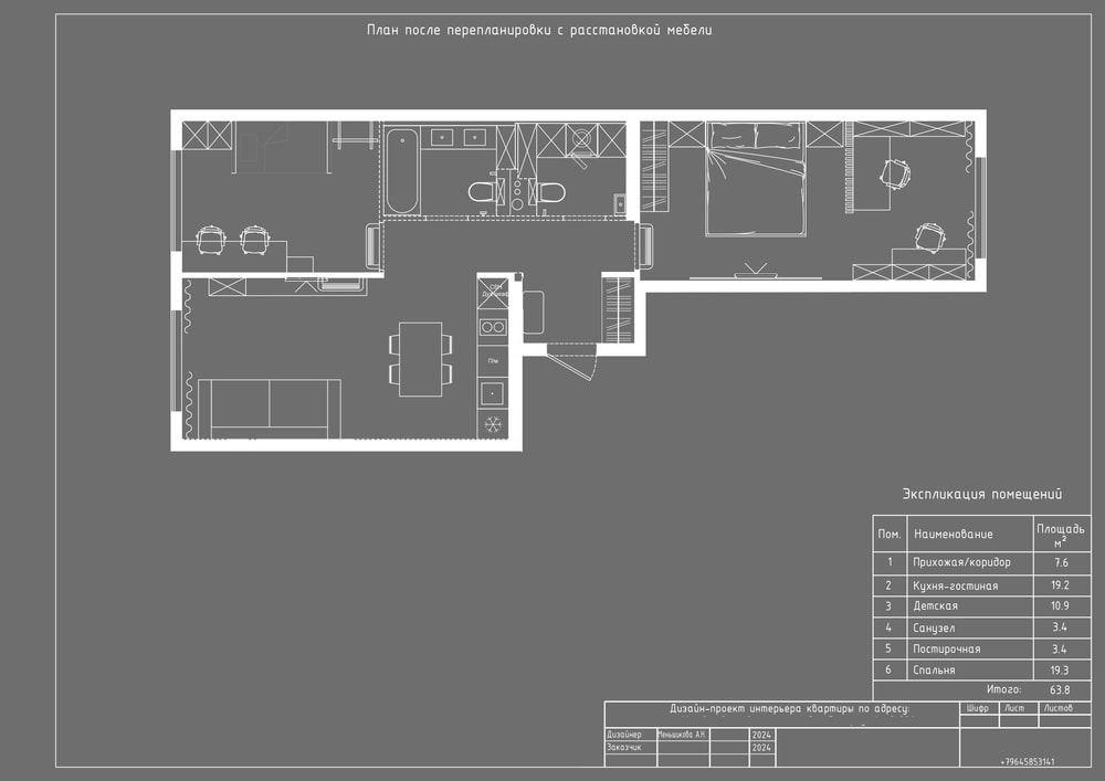
План после перепланировки с расстановкой мебели




Перейдем к визуализациям и частично покажу процесс реализации
Входная зона

Релиз, представим что есть натяжные потолки
*цвета камера передает чуть ярче чем в жизни



Кухня -гостиная




Релиз и вот наши 3d панельки получились так же на реализации .


Спальня



мини кабинет в спальне

Релиз пока без мебели , натяжного потолка

Детская для двух мальчишек небольшого возраста



Релиз так же тут еще без потолка



Очень красивый вышел цвет стен, камера не передает



Релиз


Постирочная



Релиз


Теперь что сделали с отоплением которое шло по периметру комнат в плинтусах, данный плинтус был пластиковый на 5 см выступал, это значит и мебель вплотную не поставить и плинтус не покрасить в цвет стен, в общем огромный некрасивый пылесборник .



Мы сделали коллекторный узел отопления и провели все трубы отопления в стяжке , и из стены теперь у нас красивое скрытое подключение радиатора и отсутствие труб по периметру .

Спасибо за внимание )
И я хочу напомнить что мы занимаемся не только полными дизайн-проектами ,а так же разрабатываем отдельно планировочное решение для вашей квартиры , дома и т.д .
Инстаграм Dekoza
Сайт Dekoza
tel: 8 964 585 31 41 WhatsApp
Работаем с любым гором России
Лучший ответ