Спальня-детская
Интерьерное решение детской комнатыДевочки! Помогите-подскажите!
Есть комната, не большая чуть меньше 15 метров.
В ней стоит стенка шкаф. Надо как-то совместить детскую полноценную кровать(можно чердак) и мамину кровать(скорее диван)

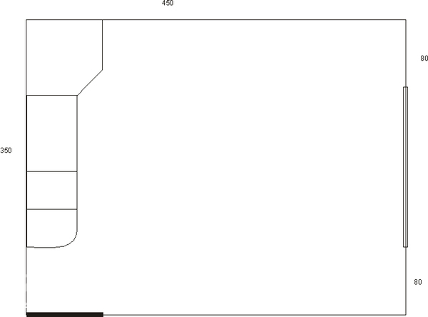
Черное - это дверь, ну а справа окно. Помогите, а???
Анна
как вы считаете, какой вариант будет удобнее для жизни???
А там около дивана тоже что-то стоит??? Я когда планировала, то хотела лестницу к окну поставить!
07.09.2012
Ответить
Кряшечка (Дизайнер по кухням)
С лестницей не принципиально)
В данном варианте больше простора, малышу есть где играть и бегать. И удобнее ТВ находится.
07.09.2012
Ответить
Анна
ну супер))))))) вы мне очень помогли. осталось только решить где заказать! посоветовать не можете??7
07.09.2012
Ответить
Кряшечка (Дизайнер по кухням)
Из российских не подскажу) Поспрашивайте здесь на бб, думаю, подскажут.
07.09.2012
Ответить
Анна
да чего-то ничего кроме белки не предлагают. ((( а на них очень много отрицательных отзывов(((
07.09.2012
Ответить
Кряшечка (Дизайнер по кухням)
Анна, а подскажите, стенка шкаф из каких модулей состоит, есть ли там место для тв, или это просто шкафы, или есть стеклянные шкафчики.
06.09.2012
Ответить
Анна
нет, для тв там места нет, это просто шкафы 2 метра в высоту. стекла тоже нет. Последняя секция(которая ближе к двери угловые открытые полки)
06.09.2012
Ответить
Анна
ой.... стены персиковые, пол темный, что-то пипа такого http://images.yandex.ru/yandsearch?text=ламинат&noreask=1&img_url=www.2939.ru/im/vint/1297.jpg&pos=2&rpt=simage&lr=213
шкаф приблизительно такой-же, но чуть рорыжее, что-ли.
А кровать я хотела какую-нить яркую(например оранжевую)
Еще есть новый угловой диван красного цвета, если вы его как-нить вместите будет вообще волшебно. у меня он никак не встает! он где-то 260 на 180
06.09.2012
Ответить
Анна
все смотрела и не могла понять что меня смущает и почему я изначальна убрала такой вариант, сейчас вспомнила: диван раставляется вперед на 2 метра. остается 1,5, кровать где-то метр. мне кажется очень тесно будет при разлож. диване
07.09.2012
Ответить
Кряшечка (Дизайнер по кухням)
Тесно. Но, других вариантов не вижу пока. Тут или шкаф другой или диван) Вам лучше купить небольшой диван, поставить его спинкой к окну в тот угол, где стоит детская кровать, между углом и шкафом тв, кровать детскую и стол в другой угол. Тогда и места будет много даже при разложенном диване. А может у этого красного дивана можно угол убрать???
07.09.2012
Ответить
Анна
можно угол убрать, а можно и новый купить, такой вариант расматривается. А если кровать чердак???
а там где стоит детская кровать - там батарея(((
07.09.2012
Ответить
Кряшечка (Дизайнер по кухням)
А вы мне более точный план дайте, где батарея, на сколько подоконник выступает, под окном на сколько батарея.
Можно и чердак рассматривать. Вверху кровать, внизу стол или еще что? Просто я считаю, что будет очень громоздко, у вас шкаф большой, еще эта кровать чердак, ваш диван.....
07.09.2012
Ответить

