Купили квартиру !
Наше новосельеДобрый день девочки!!! наконец и я пополняю ряды новоселов ,хотя о переезде рано говорить купили квартиру но еще долго ждать до переезда дом еще достраивается .
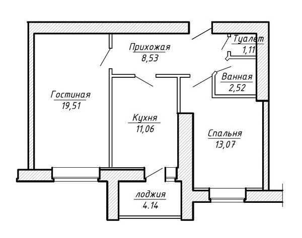
ВОТ ОНА !
есть план теперь есть и над чем подумать что и как будет . Сегодня смотрели уже хочется поскорее заехать но работы непочятый край пугает ,но справимся ведь наше гнездышко .
а это наш дом
дом находится в центре города рядом торговые ценры рынок , школа как раз в которой учиться сын море видно до него мин. 15 пешком
Екатерина
Планировка классная,место сказочное,сделаете ремонт и жить будете как в сказке-удачи))))
19.11.2012
Ответить
Тонечка
да хорошая ,только вот по началу как то смутила кухня по середине и ванная маленькая
18.10.2012
Ответить
Тонечка
да как то и не думали об этом все равно решение за мужем а он думаю будет против так как у нас однушка там сдовенно и ему не нравится
18.10.2012
Ответить
Натали
ну то что кухня посередине привыкните:) а ванна у нас еще меньше... 2 м кв. ничего уместились... доделаем ремонт я обязательно покажу:)
зато кухня очень большая:) это очень хорошо:)
18.10.2012
Ответить
