Двушку в трёшку, КАК?
Перепланировки стен. Согласование перепланировки квартир и нежилых помещений.Подскажите пожалуйсто , у кого какие идеи ??? Купили такую квартиру , на плане №1 оранжевая!
Как сделать лучше две спальни и зал? Детей двое и в будущем хотелось бы им по комнате отдать!!!! Вместе им не варриант, девочка уже большая а мальчик маленький! Вообщем разнополые и разновозрастные. Хотим дочке сразу комнату выделить, а с сыночком до школы в одной комнате спать пока! Ну и зал чтобы был! Общая комната, так сказать!!!! Жду ваших свежих предложений!!! Сами конечно придумали, в середине сделать комнату хол с диваном и телеком , с закруглённой стеной плавно перетикающим в кухню-сталовую. Вот как нарисовать это не знаю ? Не умею на плане нарисовать, как и в какой программе вы это делаете?Всем зарание спасибо!!!! Ах да дом манолит , стены сносить можно, конечно согласовав! Не трогать только несущее столбы. Один останеться в центре квартиры , есле стену зала снести, но его можно красиво обыграть!!!
ВОТ НАШ ВАРРИАНТ ПЕРЕПЛАНИРОВКИ!!! Что скажите? Ваше мнение? Получаеться как бы ХОЛ с диваном и телевизаром. Двери в комнаты с большим матовым стеклом для света и зал какбы перетикает в кухню! В кухне будет зона столовой организованна так, что когда смотриш из зала, то кажеться что там кухни нет , а просто столовая с дорогими шторами и столом...... Закруглённая стена будет полностью поклеена олного цвета пёстрымиобоями от хала и по всей кухно. Остольное пространство в однотонной гамме.
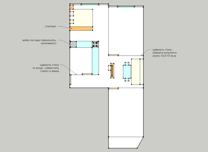
комната 9,8 для дочки, с личным душем или с/у. кухонный гарнитур на месте прохода в бывшую кухню, чтобы мокрые зоны не попали на жилую площадь. к комнате 14,7 лучше присоеденить гардеробную, чтобы не занимать драгоценные метры под шкаф.
Юль, насчет размеров не ручаюсь. Если есть возможность прислать точные обмеры - присылайте порисую еще, возможно коррективы будут.13,5 - кухня гостинная, если нужно могу прикинуть расстановку мебели
9 и 12 - спальни
несущий столб про который выписали ниже немножко портит картину, но его можно обыграть
для большой семьи - хорошо бы 2 санузла, правда второй туалет маленький получается, не больше метра, но опять же были бы точные размеры можно плясать
кладовка 1,5-2 метра, можно встраив. шкаф
Можно изолироваными только 2 спальни сделать(12 и 13,5 например), тогда кухня-гостинная будет больше, но по личному опыту (живем в студии) не советую. вам с мужем захочется уединиться, а в проходной комнате это сложно сделать

