Студия. Вариант 3
Первый
Второй
Продолжаем, разговор))
Эко-стиль. Все близкое к природе, все натуральное, оттенки леса, земли, дерева, песка.
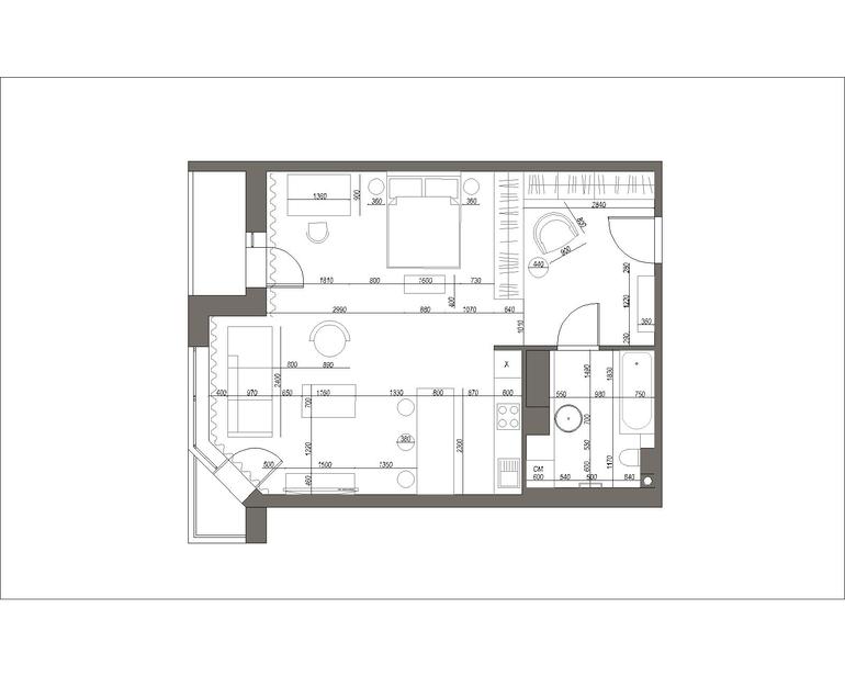
Планировка:
![]()
Габариты мебели и проходов:
![]()
Развертка прихожей:![]()
Развертка зоны кухни-гостиной:![]()
Развертка зоны гостиной и спальни:![]()
Развертка ванной:
Привязки освещения:![]()
Стилистическое решение:![]()
Настёнка
я за первый все равно) не люблю такой коричневый.как-то мне пестрО)))но это про цвет.все остальное нравится)
22.08.2014
Ответить
Диана
подскажите , что за консольный столик вы использовали? и какова длина и ширина помещения, все очень понравилось , но план мелковат размеров не вижу.
22.08.2014
Ответить
Александра Панькова
6800 х 7000 жилая частьКонсоль какая именно?В гостиной эта
В прихожей эта
Есть еще такой стол
еще в проекте есть вот этот столик, но его на чертежах не видно, он в ведомости указан
В прихожей эта
Есть еще такой стол
еще в проекте есть вот этот столик, но его на чертежах не видно, он в ведомости указан
22.08.2014
Ответить
Диана
первая очень классная . ищу себе нечто подобное.А студия супер , ширина и длина у нее очень удобная., вот у нас студии продают шириной 3,5 м длиной 7 вот как такую уродину планировать...жщ)))
22.08.2014
Ответить
Александра Панькова
Эх(( ну одно могу сказать — эта студия и дороже гораздо, чем 7 на 3,5.Это я Вам еще без прихожей размер сказала — там вообще 9 метров стена, на обмерном плане в первом варианте видно.
22.08.2014
Ответить
Аня
Скажите пожалуйста, а вы можете одной комнаты дизайн сделать и сколько это будет стоить?
22.08.2014
Ответить
Александра Панькова
Да, Аня, могу)) напишите мне на почту, пожалуйста, aasboss@yandex.ru
22.08.2014
Ответить







