Дизайн-проект: "Мятный фреш"
Авторские проекты дизайнеров.(Посты не по теме будут удаляться!)Всем добрый день!
Сегодня покажу наш свежий проект. Только что закончили.
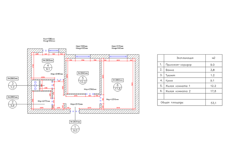
Семья - мама и дочка. Двухкомнатная квартира в новостройке на юге Москвы, площадью 53,1 м2.
Практически все стены несущие, поэтому планировка осталась изначальной. Добавили только небольшую угловую гардеробную в спальню.
Задача была - создать светлый, просторный интерьер. Где преобладали бы такие цвета как белый и бежевый, а акцентом решено было сделать мяту.
Стиль скандинавский. Где-то чуть в прованс, как на кухне, где-то больше минимализма, как в спальне.
Для детской у заказчицы уже имелась двухуровневая кровать. А также, дочка уже определилась с любимыми цветами (сиреневый и голубой). От этого и отталкивались в создании интерьера комнаты.
Обмерочный чертеж:

Планировочное решение:

План расстановки мебели:

1. Прихожая

2. Коридор

3. Кухня

4. Ванна

5. Туалет

6. Спальня

7. Детская

Спасибо за внимание, буду рада комментариям, а также письмам в личку, на почту и звонкам. С удовольствием, отвечу на все вопросы.
Сейчас у меня проходит осенняя акция на полный дизайн-проект.
Цены снижены!
Обычная цена на полный дизайн-проект:
- до 60м2 - 1900руб./м2
- от 60 до 110м2 - 1700руб./м2
от 110м2 - 1500руб./м2
Цена по акции:
- до 60м2 - 1700руб./м2
- от 60 до 110м2 - 1500руб./м2
от 110м2 - 1300руб./м2
(акция действует до конца сентября).
Моя почта: Naamah1987@yandex.ru
Мой телефон: 8-905-767-13-32