Квартира крошка!
Девочки, здравствуйте!
Мне досталась от бабушки маленькая однушка. Для нас с мужем это было праздником - до этого нам приходилось снимать, так же однушку. Так что мы рады - маленькая, но своя.
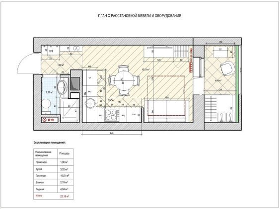
Вопрос стоит в том, что нужно потратиться на ремонт теперь. К тратам этим мы готовы - у нас есть отложенные деньги, порядка 500 тыс. Квартира у нас общей площадью 20 метров, как на планировке, только у нас нет лоджии.

Я вот нашла пару вариантов, может у кого-то есть свои идеи и представления?


Опережая вопросы - в будущем квартиру продадим, вложимся в расширение.
Настя
Девочки, спасибо всем!!! Так помогли!! Кухню сделаем реально поменьше, спасибо за идею!
23.11.2016
Ответить
Kristina
А я если честно, то люблю такие маленькие)) Мы сами пока снимаем жильё, но как раз сейчас думаем об замене и покупке квартиры, так одно время я вообще смотрела малогоборитки в новостройках, го потом все таки муж переубедил, мне просто нравится что маленькая - уютненький такая)) Кстати насчёт интерьера - если вам позволяют финансы, то я бы наверно наняла дизайнера, ну том же можно по примерам в интернете посмотреть, и что то похожее сделать, кстати вот вам сайт прикольного мебельного https://www.angstrem-mebel.ru/catalog/bedroom/ - может пригодится, я думаю в любом случае когда будете выбирать мебель - будете много мониторить по этому поводу )))
22.11.2016
Ответить
Анна
Думаю, главное, продумать все. Например, будут ли часто гости или нет. Если только для себя, я бы сразу поставила кровать 140, думаю, норм будет, если вы не очень большие люди :) потомучто каждый день диван собирать все равно никто не захочет, а кровать полезнее для спины. В изножье комод, телек, если нужен. Кухню с 2 конфорками, метра полтора максимум, на плане слишком большая, стол можно откидной, либо барную стойку, кровато отделить ширмой, панелями илипросто занавеской.
22.11.2016
Ответить
Марина
Ой, у меня муж несколько раз делал ремонты в таких крошках! Очень уютно и функционально получается, главное все заранее хорошо продумать. Я в одной была, там стол -барная стойка. Самое то! Очень удобно, места занимает мало и визуально разделяет пространство.
Это коридор
А вот под лампой как раз стол
А это санузел
А вот под лампой как раз стол
А это санузел
22.11.2016
Ответить
Дизайнер 3D
Здравствуйте. Есть идеи.Разработаю Дизайн проект интерьера любого помещения.Заходите в мой дневник, пишите, звоните.Подробную информацию направил в л.с.Моя почта 89161649464@mail.ruМТС Москва 8-916-164-94-64 звонить с 9 - 30 до 21 - 00 по Москве.
22.11.2016
Ответить
Яся
Я похожую квартиру снимала))
https://www.ss.lv/msg/ru/real-estate/flats/riga/centre/aglxx.html - здесь планировку глянуть можно.
22.11.2016
Ответить