Квартира-крошка, 31,56 м2!
Моя работаТакая кроха с таким плотным функционалом у меня впервые!)) И бюджет небольшой... И представления об идеале нестандартные...)))
UPD: Добавила несколько фото, будут еще!!))
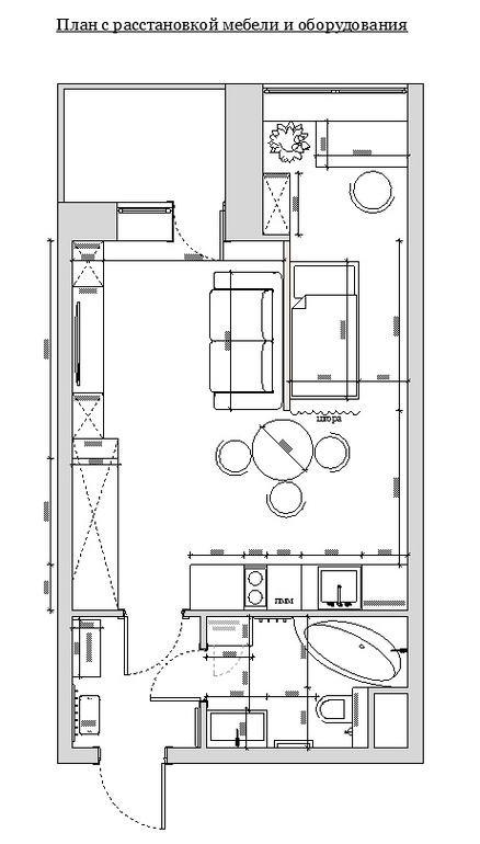
Итак, семья из трех человек, мама, папа и мальчик 7 лет. Квартирка - студия с комнатой всего 24 квадрата, где требовалось разместить полноценную кухню, столовую зону, гостиную, которая будет одновременно и спальней и изолированную детскую, обеспечив всех максимально местами для хранения... Эх... непростая задачка!))
Но все так у нас ладненько складывалось, как по маслу...
Планировка:

Малышка-прихожая, все мега-компактно... Но тем не менее, квартира не выглядит загруженно! В прихожей удалось вместить все необходимое.


Мебель выбрали спокойную, лаконичную. А торжественность и нарядность придает помещению свет! Его много и люстра в живую смотрится изумительно!

А вот и главное помещение. Бюджетная, но вместительная кухня, сканди-налет в отделке и наполнении, доступные материалы.

Малюсенькая, но все же изолированная детская зона с удобным рабочим местом и полноценной кроватью-кушеткой.


И яркая жизнерадостная ванная - подобную я уже показывала у себя в контакте, заказчица изначально хотела другую плитку, но влюбилась в эту и другую не захотела!))













