Всем привет! Наконец появилось время рассказать об уже наработанном.
Сегодня это квартира в скорее классическом стиле, светлая с небольшим синим декором.
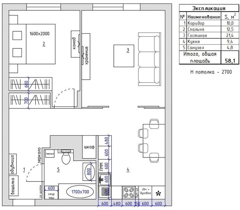
Планировка достаточно распространенная сейчас в новостройках, единственно здесь заказчики очень хотели увеличить ванну. И плюс удалось сделать небольшой шкаф для хранения всяких хоз.штук.
Квартира предназначена для семейной пары без детей.







