Помогите определиться где лучше делать детскую!

 я бы сделала как ваш муж посоветовал!Во-первых, все и так всегда обитают на кухне, делать ее как можно больше, ставить диван и сооружать что-то вроде кухни-гостиной. А в спальне вам только спать, отдыхать. Во-вторых, детская очень удобно удалена от основного шума в квартире. Ну и что, что вагоном. Она и больше. Разместите все! Покрутите, и разместите. И коридор у вас хороший останется для всех основных шкафов.
05.07.2013
получается что коридор отличный по площади, но из-за большого кол-ва дверей не поставить ничего, ну я про шкафы большие, только мини прихожку вдоль длинной стены, с вешалками, а не шкаф. Я уже сама стала склоняться к мужа идеи))) Только не понятно куда телевизор вешать, ну ладно приткнем куда-то 
05.07.2013
а если поставить диван не лицом к кухонному гарнитуру, а спиной. Тогда будет видно его со всех положений. Или диван у новообразовавшийся угол у окна, а телевизор на левую от входа в кухню стенку. А про коридор... Можно попробовать поставить шкаф в простенок между входом в кухню и в спальню. Сделать его (шкаф) типа встроенного. Да, он уменьшит ширину коридора, но он нужен. Или по длинной стене коридора сделать сначала узкую открытую вешалку (40 глубина), а потом перейти в более глубокий шкаф (60 глубина), обыграть этот переход. И продолжить до конца стены. Тогда в спальне только комодик с самым необходимым.
05.07.2013
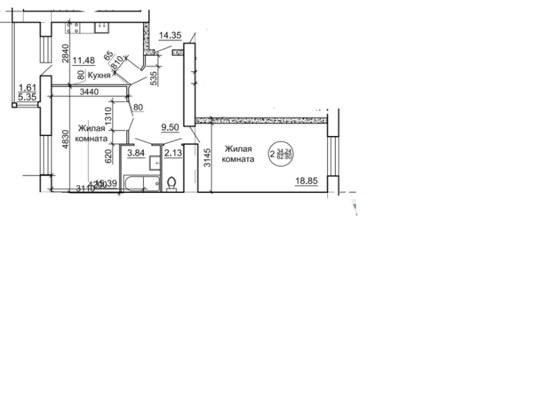
Со стенами определились, весь день крутила, вертела))) http://s018.radikal.ru/i504/1307/03/57d378200cdc.png мне нравится ниша под холодильник и то, что место для шкафа есть в коридоре и он не на проходе. Диван да можно и развернуть, то же так думаем или же по среди комнаты ближе к плите сделать овальную барную стойку, а сверху закрепить телик.. ну это мое бурное воображение и не знаю даже получится так или нет)))
05.07.2013
Что-то ссылка не выделилась, попробуйте так скопировать   http://s018.radikal.ru/i504/1307/03/57d378200cdc.png
05.07.2013
да, здорово так тоже, если проход смещать.
05.07.2013
мне кажется ваш муж предложил очень хороший вариант, только я бы еще стену на кухне, которая смежная с коридором, снесла бы и получилась бы кухня/гостиная-студия, это очень расширит пространство. Комната рядом с кухней будет вашей спальней, а дальнюю комнату отдать детям. 
05.07.2013
вот соседи по стояку так сделали коридор-кухня-гостиная, а мне так не очень т.к. коридор нам нужен, коляски, велосипеды, все это в коридоре
05.07.2013
а в общий холл нельзя все это вставить? или у вас нет холла.
05.07.2013
нет, у нас обычный подъезд и лифта не будет 1-2 года плюс 9 этаж
05.07.2013
я бы тоже сделала перепланировку, сдвинув по-максимому стену, чтоб сделать маленькую спаленку. можно поставить консоль, она будет выполнять роль разделения комнаты на зоны, к ней с одной стороны стол обеденный (со стороны кухни), а с другой стороны диван, напротив дивана телевизор на стену, которая сдвинута максимально и отгораживает спальню. стену, граничащую с коридором, я бы сдвинула вправо, сделать ее можно не до конца, а как бы оставить широкий проход, объединяющий часть коридора, ведущего от детской в кухню-гостиную  
05.07.2013
кухню сделайте в комнате 16м,а спальню в кухне,в спальне можно еще душевую поставить,у вас здорово два стояка и стены ломать не надо
05.07.2013
нельзя у нас так, у нас там газовая плита по плану, газ
05.07.2013
Планировку комнат оставила бы как есть, большую комнату детям. Комнату-"вагон" проще поделить на две зоны (двоих детей), чем квадратную. Какие гости приходят? У нас в основном с детьми, так что по любому дети идут в детскую,  иначе игрушками разносятся по всей квартире. Если гости приходят на угощение - на кухне 11 м вполне это можно организовать. Танцы дома ведь не устраиваите?
05.07.2013
дело не в гостях, а втом где вся семья будет собираться вечером, если ничего не двигать, то или же на кухне, а там места 11.5м маловато или же в большой комнате, значит там должен стоять диван, а сами понимаете постоянно каждый день раздвигать его спать не удобно
05.07.2013
А Вы попробуйте плясать от того, что все семья делает, когда собирается вечером. Мы вместе или играем с ребенком или смотрим тв.
05.07.2013
а попробуйте так - ломаете стену между комнатой и кухней, правую стену выстраиваете по ширине кухни (т.е. практически от входной двери и вниз до ванной). Получается огромное просторанство - в нижнем почти квадрате отгораживаете спальное место (прям по краю  окна) (сейчас есть куча варианов зонирования) и оставшаяся часть остаётся на кухню + гостинная. Т.Е. как на втором рисунке, только стену спальни двигать ещё ниже (вход будет из гостинной) и правую стенку гостинно ещё перенести вправо....надеюсь понятно написала...просто сейчас сами думаем соединять кухню, зал и отгораживать там спальню.
04.07.2013
да я так и думала пока не пошла с рулеткой и не стала измерять стены. Правую стену по ширине кухни не лучшая идея перенести т.к. коридор станет очень узким тунелем там ширина около 1.2 останется. По краю окна то же хотела стенку сделать, максимально расширить, но там... батарея! трубы идут(((( конечно может на фото далековато нарисовано, но смысл такой. И из кухни в спальню дверь пробивать хотела, вы прям мои мысли читаете, там стенка ровно 3 метра, диваны обычно 2.5 как бы плотно к сете не хочется ставить. Вот еще одно НО расположение получается такое, что некуда телик то вешать!
04.07.2013
мы все еще не оборудовали себе спальню ,как хотели.. но все равно обитаем на кухне полдня))) я даже целый день.. мне кажется ,я в комнату только спать хожу 
04.07.2013
по моему, замечательная идея
04.07.2013
Я бы сделала кухню-гостиную как ваш муж хочет, но санузел оставила раздельный.
04.07.2013
он не удобный раздельный, там помещение где туалет, как тунель длинное, я смотрю все соединили, квартира в новостройке, дверей пока нет, мы ходим смотри как людиделают
04.07.2013
У нас в туалет иногда очередь образовывается. А если б санузел совместный, то и не помыться. Я б так и оставила, поставила раковину небольшую чтоб не мешалась ближе к входу, зеркало повесила.
04.07.2013
У нас не образовывается))) Мы жили 5 лет с совместным, нам очень удобно было. Я купаюсь поздно ночью когда дети спят. Мне не мешает никто. 
04.07.2013
Соглашайтесь на идею мужа, получится 3-ка... Лучше все будут весь день в  кухне-гостиной время проводить, чем в гостиной-спальне. У меня одна подруга именно так и сделала пере планировку, очень удобно!!!
04.07.2013
ну да, так захотел спать ушел в свою спальню, а так детей выгонять придется
04.07.2013
Вот именно... Мы сейчас так живем, у нас детская и гостиная в которой мы спим((( сборка и разборка дивана каждый день убивает, в течении дня прилечь негде... Мечтаю о двухспальной кровати и своей комнате, надеюсь, что в следующем году это исполнится)))
04.07.2013
а шкаф-кровать видели? Очень удобно, в комнате 19 метров как раз бы отлично было и диван и шкаф-кровать))) Отбрасывается и диван двигать не надо. 
04.07.2013
Видела, но сейчас живем в девушке площадью 39 кв.м., да еще не в своей... Тут мебель расставить сложно, да и такая кровать минимум 100-150 тыс. стоит, жаба бы меня съела)))И все-равно лучше отдельной изолированной спальни нет ничего. Жду когда закончат ремонт в нашей новой квартире и у меня будет своя 11 метровая спальня))))
04.07.2013
такие кровати на заказ делают 20-30тр у моих знакомых такая, очень довольны))) Ну вам вообще замечательно, раз скоро будет переезд))) Нам еще не скоро(((
04.07.2013
Ну не очень скоро, надеюсь к новому году получится успеть, хотя не уверена(((( И на вашей улице скоро будет праздник)))
04.07.2013
Нам бы к НГ начать делать ремонт))) Дом еще не сдан. Но разрешили штукатурить стены, а мы с планировкой не определились 
04.07.2013
Оставшиеся комментарии доступны после регистрации
Зарегистрируйтесь и получите полный доступ ко всем функциям сайта.
Вопросики по ремонту в кухне про кухню