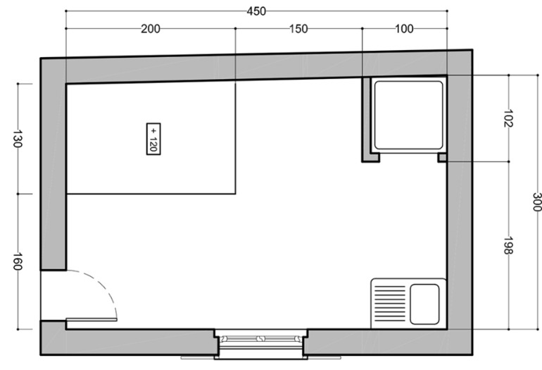
Думаете, у вас маленькая квартира? А как вам квартира площадью 15 кв. м в Милане?
Полезные ссылочкиНеобычные подборки интерьеров нашла здесь: , там столько всего интересного!!! :О)



Светлана
Интересно, сколько человек в этой квартирке проживает? Если один - то можно допустить. А вот для семьи даже из 2-х человек тесновато будет, как ни крути((( И где там с/у?
24.07.2013
Ответить
Ася
с/у там общие...на этаж....так что наши хрущевки это ваще круть крутьковая)))))
24.07.2013
Ответить
Оксана
Там живет одна девушка-студентка. И у нее большая ванная комната - 5 кв. м, а всё остальное - на 10 кв. м умудрились разместить: и гардероб, и кухню, и спальню)
25.07.2013
Ответить
Светлана
Ого, с/у больше нашего))))) Вообще не спорю, для одного человека - отлично, а главное виртуозно, продумано, удобно и функционально! Надо умудриться на такой площади сделать все так, чтобы было все, что нужно)
25.07.2013
Ответить