Прошу помощи и принимаю советы по перепланировке 3-х комн квартиры!!!
Перепланировки стен. Согласование перепланировки квартир и нежилых помещений.
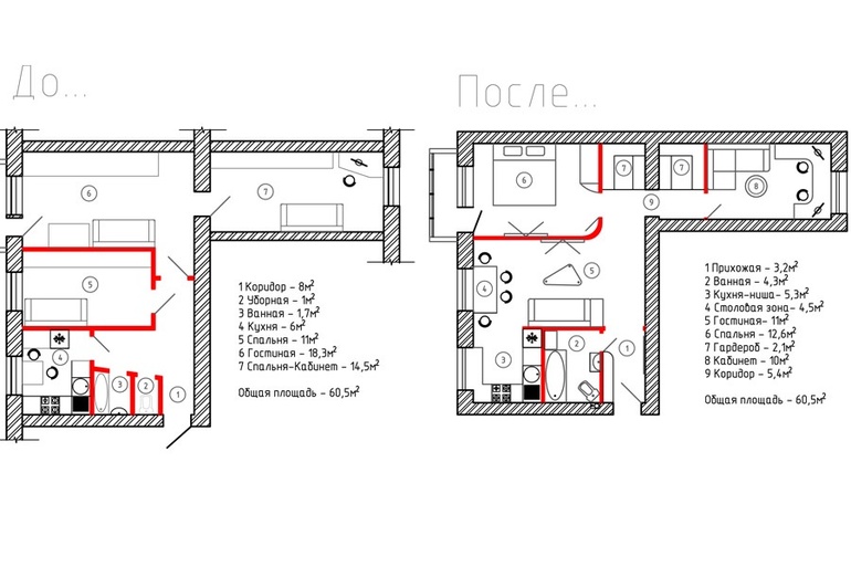
Извините,куда то исчез текст письма. Итак,семья из четырех человек: мы с мужем и двое разнополых деток.Хотелось бы конечно каждому по комнате и нашу спальню,но напрягает эта малюсенькая кухня...стены,как я поняла,несущие только по периметру.смежные комнаты сделаем изолированными,а вот что делать с кухней...буду благодарна за любые предложения!!!
Elena
Если вам нужны 3 комнаты, то может вот такой вариант рассмотреть?
В кухне делаем углубление для холодильнике за счет комнаты, а в комнате это углубление обыгрываем встроенными шкафами и телевизором. Или расширяем кухню за счет комнаты, увеличиваются и туалет с ванной, что позволяет нам сделать душ в ванной.
Спальная взрослых в комнате с балконом, делаем максимально возможный проем и распашные двери.
В кухне делаем углубление для холодильнике за счет комнаты, а в комнате это углубление обыгрываем встроенными шкафами и телевизором. Или расширяем кухню за счет комнаты, увеличиваются и туалет с ванной, что позволяет нам сделать душ в ванной.
Спальная взрослых в комнате с балконом, делаем максимально возможный проем и распашные двери.
24.01.2014
Ответить
Neofelis
У нас похожая планировка, ремонт будем делать через год и поэтапноВот какие планировка я взяла себе на вооружение. Последне - это на тему как впихнуть в кухню 6 м все нужное(((. А комнаты можно разделить


23.01.2014
Ответить
Elena
Как вам вот такой вариант?
У кого-то из девочек на сайте очень похожая планировка.Я уже предлагала подобное решение.На рисунке я показала что можно покрытием пола добавить к зоне кухни часть гостиной для стола.Для семьи из 4-ех человек, конечно надо бы отдельные туалет и ванную. Но если вы их объедените, то можно в закутке перед ванной сделать шкаф, куда спрятать стиральную машину. Или это будет площадь ванны и ставим стиралку там, а сверху шкафчик с полочками. На вашей схеме я не вижу цифры "ширина ванны". Какая у вас ширина?А есть у вас планировки от застройщика? Где располагается вентиляционный короб и трубы?
У кого-то из девочек на сайте очень похожая планировка.Я уже предлагала подобное решение.На рисунке я показала что можно покрытием пола добавить к зоне кухни часть гостиной для стола.Для семьи из 4-ех человек, конечно надо бы отдельные туалет и ванную. Но если вы их объедените, то можно в закутке перед ванной сделать шкаф, куда спрятать стиральную машину. Или это будет площадь ванны и ставим стиралку там, а сверху шкафчик с полочками. На вашей схеме я не вижу цифры "ширина ванны". Какая у вас ширина?А есть у вас планировки от застройщика? Где располагается вентиляционный короб и трубы?
23.01.2014
Ответить
Екатерина
Очень понравилась идея!!!что-то наподобие представляла в уме.Ширина ванной 0,95,еще планирую ванну туда не ставить,обойдемся душевой (хотим выложить из мозайки с глубоким дном)Как раз освободится место для машинки.Подскажите,на Вашей схеме получается 2 гардеробных?И что обозначено у входа в квартиру?
23.01.2014
Ответить
Elena
Даже если вы сделаете душ, стиральная машинка у вас может не поместиться. Только разве что с вертикальной загрузкой, они узкие (40 см).В коридоре сделала углубление для шкафа/прихожки и чтобы не было так тесно. Вы можете уже исходя из размеров размещать стены.Да, я сделала 2 гардеробные и проход в спальную зону через гостиную. Но это опять же, если вам это подходит и достаточно места, на вашей схеме не видно всех размеров (длины, ширины комнат, коридора).Рас смотрите еще вот такую планировку:
Туалет меняем местами с ванной и сдвигаем в коридор. Душ строим в закутке. Стиральную машинку под раковину. Смотрим позволяют ли размеры разместить стиральную машинку.
Туалет меняем местами с ванной и сдвигаем в коридор. Душ строим в закутке. Стиральную машинку под раковину. Смотрим позволяют ли размеры разместить стиральную машинку.
23.01.2014
Ответить
Екатерина
Спасибо за идею!так хотелось оставить три нетронутые комнаты,но,видимо,без совмещения не обойтись...
23.01.2014
Ответить
Ксюшик
добрый день!такой вопрос у вас семья сколько человек?Планируете ли вы прибавления?
23.01.2014
Ответить
Екатерина
Извините, текст куда-то исчез.У нас семья из 4 человек:я,муж и двое разнополых детей,каждому хочется выделить по своему уголку и самим хотелось бы полноценной спальни.Смущает только маленькая кухонька,но,видимо,без объединения ее с комнатой не обойтись...(
23.01.2014
Ответить
нарисованного))))
