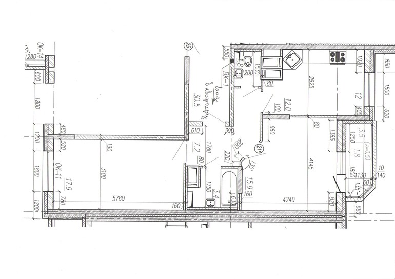
Помогите пожалуйста идеями. 2х комнатная квартира как сделать перепланировку.
Вопросы и ответыДевочки очень нужны ваши идеи по перепланировке 2х комнатной квартиры. Мы будем жить в троем. Я, муж и маленькая дочка. К нам часто приезжают гости мои родители. Всем за ранее спасибо за идеи и помощ.

Riamna
У нас похожая планировка. Правда зал квадратный и чуть больше. Из него мы сделали кухню-гостиную. На кухне сделали спальню. Ну а детская так и осталась детской. Ничего не сносили. У нас так пол дома сделали. Два туалета с маленьким ребенком - это так удобно! Муж сперва не хотел делать два, а потом оценил и нисколько не жалеет.
23.01.2014
Ответить
Анна
Спасибо большое! Скажите а вам не сложно фото прислать этой комнаты гостиной кухни? Если это не затрулнит и вазможно? Очень интересно как выглядит так??
23.01.2014
Ответить
Riamna
Окончательного фото нет. Еще находимся в стадии ремонта и покупки мебели. Но есть вот такой схематический план:
Но как я писала выше, комната у нас квадратная (вернее прямоугольная, торможу сегодня что-то). Красным отмечено место под кухонный гарнитур. Рядом на стене телевизор, в углу шкаф. Напротив стол и диван. Нам очень нравиться планировка. И место для игр дочери есть и нам где посидеть...
Но как я писала выше, комната у нас квадратная (вернее прямоугольная, торможу сегодня что-то). Красным отмечено место под кухонный гарнитур. Рядом на стене телевизор, в углу шкаф. Напротив стол и диван. Нам очень нравиться планировка. И место для игр дочери есть и нам где посидеть...
23.01.2014
Ответить
Oksana"S"
Ой, у нас такая же планировка квартиры. Не подскажите как согласовали переделку кухню в комнату? У вас электр.плита? У нас просто индивидуальное отопление, а так хочется перенести кухню в гостиную.
23.01.2014
Ответить
Riamna
Мы пока не согласовывали, но в нашем доме это возможно. Соседи согласовывали. Есть еще вариант устройства мокрой зоны кухни в ванной. Тогда совсем никакой проблемы нет. Правда в новой кухне нет вытяжки. Плита электрическая. Просто протянули новый кабель от щитка в комнату. Не совсем поняла по поводу отопления?...
23.01.2014
Ответить
Oksana"S"
Индивидуальное поквартирное отопление у нас. В квартире стоит котел. Нам видимо нельзя так переделывать из за этого. Да и плита у нас газовая.
24.01.2014
Ответить
Oksana"S"
Дд! Посмотрите у меня в дневнике есть пост "из двушки в трешку " называется. У нас такая же квартира. Там есть идеи перепланировки.
24.01.2014
Ответить
Борисыч
с\у у кухни убирай. кухню дели пополам. где окно комната для ребенка. а кухню объединяй с комнатой где балкон. будет кухня-гостиная- столовая. у меня так примерно
23.01.2014
Ответить
Анна
Девочки еще вопром муж прилумал второй санузел и коридор к нему приоежаший сделать как гардеробную а вход перенести в зал?? Скажите такой вариант практичный или нет??
23.01.2014
Ответить
daryakiri
я бы ничего не меняла))) хорошая кухня 2 сан узла для всех гостей, хорошая гостинная. может быть если только вторую комнату уменьшить а на свободном пространстве сделать гардеробную.
23.01.2014
Ответить
daryakiri
тата как раз нарисовала план по уменьшению одной комнаты))) Ниша для дивана на кухне будет грыжей в гостинной.
23.01.2014
Ответить
Анна
Дарья еще вопром муж придумал второй санузел и коридор к нему приоежаший сделать как гардеробную а вход перенести в зал?? Скажите такой вариант практичный или н
23.01.2014
Ответить
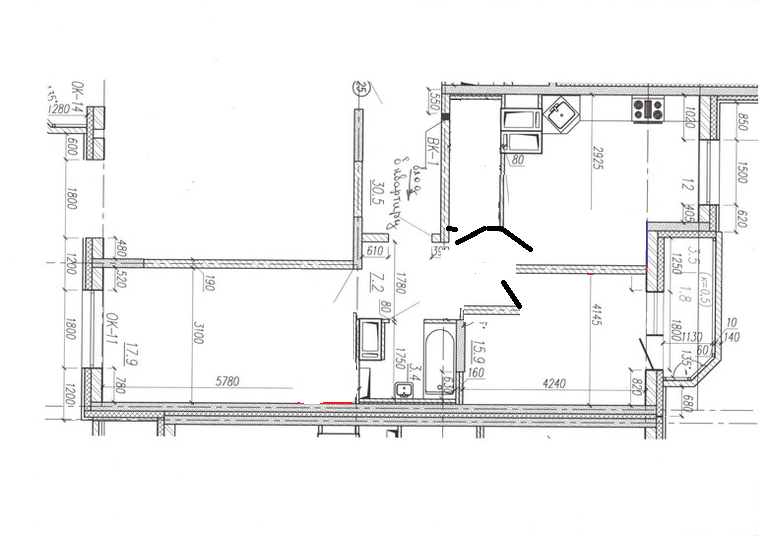
вот так можно