2 варианта квартир.
Вопросы и ответыНа данный момент нашли 2 варианта квартир.
Одна была 4-ка, но они снесли стенку и теперь зал 30м2 получился. Квартира рядом со школой, садом и папой моим. Ремонтик более-менее сделан. Не большая доплата, после продажи нашей трешки. 8 этаж, 9 этажки. 74м2. Коммунальные платежи большие. 2 балкона.

Вторая квартира 5-комнатная. В УЖАСНЕЙШЕМ состоянии!!! Без доплат вообще, тупо обмен на нашу трешку. от школы, садика и папы моего минут 30 пешком топать. Другой район... 1 этаж 9 этажки. 90м2. Коммуналка меньше чем в первом варианте. Обе квартиры угловые. 3 балкона.
Что посоветуете все же брать?
Олеся (Лесёнок)
Пятёрка ужасная.... Клетки, а не комнаты. НО тут есть куча вариантов как передалать. Всё равно вы будете под себя делать ремонт... В любом случае. Из 5-ки можно много вариантов сделать... Вот два... один с большой гостиной, второй с небольшой, но гардеробной.


17.04.2014
Ответить
Jevgenija
Ух ты, здорово как!!! А из первого варианта можете что нибудь придумать? Щас там снесена стенка между залом и комнатой рядом. Получился зал под 30м2. Самую маленькую комнату я хочу старшей доче отдать. Погодок в комнату по больше с балконом. Там купе шкаф стоит. А вот как отделить спальную зону и гостиную в этой большой комнате я не знаю.
17.04.2014
Ответить
Олеся (Лесёнок)
Откровенно говоря, четверка немного труднее в переплане. Сейчас с планшета, приду домой, поверчу, какие есть варианты. С пятеркой у нас на дальнейшее просто останется спальня ваша плюс по комнате детям. С четверкой такое не прокатит изначально. А к местоположению везде привыкнуть можно.
17.04.2014
Ответить
Jevgenija
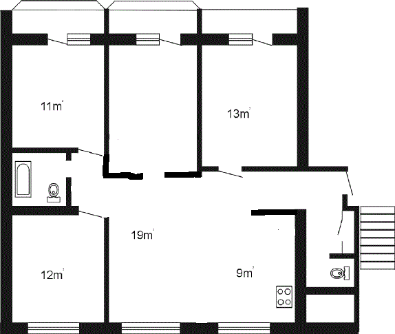
Вот планировка 1 варианта схематично.
А вот наша квартира, в которой мы щас живем. Коридор перекрыт, с кухни вход в комнату сделан. пол коридора ушло под шкаф в ванне, вторая половина под нишу для холодильника.
А вот наша квартира, в которой мы щас живем. Коридор перекрыт, с кухни вход в комнату сделан. пол коридора ушло под шкаф в ванне, вторая половина под нишу для холодильника.
17.04.2014
Ответить
Олеся (Лесёнок)
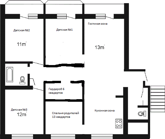
У меня родился вот такой вариант. Здесь получается есть гардероб для верхней одежды при входе, кухня-столовая зона + гостиная зона, ваша спальня, гардеробная (очень освобождает пространство от шкафов, советую), ну и как вы хотели — две детские. Правда, меня смущают лоджии из детских. Это всё-таки безопасность. Но есть замки на двери и окна пластиковые сейчас. 

17.04.2014
Ответить
Ольга
у меня первый этаж, почти три метра от земли и угловая квартира. жарища всю зиму. дом кирпичный. ничего не цветет и не течет и не тянет. я бы выбрала большую квадратуру.
16.04.2014
Ответить
Елена
я бы на вашем месте поискала квартиру поменьше, но в более хороших домах. 1 этаж не советую однозначно. Сами прожили на 1 этаже 10 лет и сейчас наконец съезжаем. 9-ти этажки тоже не фонтан, если только это не сталинки.
16.04.2014
Ответить
Ольга
Зависит не от того угловая эта квартира или нет, 1-й этаж или нет. А от самой квартиры, от дома. Мы жили до переезда в кирпичном доме 1990 г. постройки на 6 этаже в угловой квартире. Квартира была очень теплая 25-26 градусов круглый год. От стены холодом не тянуло, ни чего не цвело, ни сырело. У 2-х знакомых в панельных домах угловые квартиры. Такое ощущение, что там не стена, а дыра. Тянет как на улице, плесень, все течет. Пока на 10 см стену не надстроили (засыпали и обшивали) ничего не помогало. Вторым ничего не помогло. После прибавления в семействе переехали. Но т.к. денег лишних не было и не предвиделось и район не хотели менять, из всех предложений подходил первый этаж. Но моя мама знала кем и как и на чем был построен этот дом. То же керпичный. По этому решили преезжать. Квартиру смотрели 2 раза летом и зимой, при этом в ней ни кто не жил. Сухая, без плесени. Такая же теплая как наша старая. Полы буковый паркет, не холоднее, чем у нас на 6 этаже. Поставили хорошие стеклопакеты, и дверь. Теперь тише чем в старой, ни улицу, ни соседей, ни тем более тех кто на площадке не слышим. В первом этаже как оказалось есть свои плюсы. Ну и минусы. С настеж открытыми окнами не поспишь, да и днем не посидишь. Вида ни какого. На окна поставила жалюзи, которые с низу вверх закрываются, т.е. и окно открыто на половину светло и с улице ни кто нас не видит. Так что первый этаж не всегда зло. ))Но в вашем случае большим минусом является удаленность данной квартиры. С детьми не есть гуд. Получается 1-й вариант.
16.04.2014
Ответить
tatiana
toljko ne 1 etazh, eto blohi, sirostj i holod.............nikogda boljshe na pervom zhitj ne budu i nikomu ne posovetuju.......pervij variant mne boljshe nravitsja, no tam kuhnja nikakaja, eschje poischite, esli net to pervij variant........
16.04.2014
Ответить
Татьяна
Лучше ищите что еще или первый...Во втором 1-ый этаж и что добираться надо..не есть хорошо((((( Да и то что угловые это плохо....у нас у соседей угловая, и стены зацвели...при этом дом сдался в 2013 году(((
16.04.2014
Ответить
Jevgenija
У нас щас трешка НЕ угловая. И вся цветет. От чего и продаем ее. Дети в ней задыхаются. Что только не делали. Толка 0. Та что на 8 этаже квартира там плесени нет. Она сухая. Хоть и угловая.
16.04.2014
Ответить
Татьяна
ТОгда конечно лучше 8, на первом будет холодно и сыро(((( Сама когда квартиру покупали выбирала между 1 и 10...выбрала последний..да и планировка в первом варианте лучше)
16.04.2014
Ответить
Анна
если время позволяет, то искать, если нет, то 8 эт. 30 мин.много, а с детьми около часа идти.
16.04.2014
Ответить
Наталья
Вас 5 человек ? 1 й вариант вам мал будет через 2-3 года совсем 2й плох этажом
16.04.2014
Ответить
Оксана
Это у Вас 602 серия? Мы живём в четырёшке такой — просто замечательно. 1 этаж всёже не стоит брать, вы там всем семейством как мамонты вымерзнете, а если утеплите полы (с подогревом), то потом на электрибе разоритесь.
16.04.2014
Ответить
Оставшиеся комментарии доступны после регистрации
Зарегистрируйтесь и получите полный доступ ко всем функциям сайта.