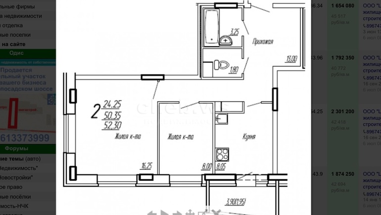
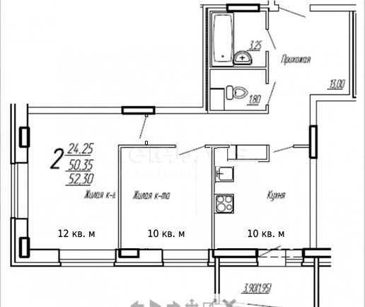
Что хорошего можно слепить из такой маленькой двушки?
Перепланировки стен. Согласование перепланировки квартир и нежилых помещений.Как грамотно перепланировать комнаты? Не люблю маленькие кухни, поэтому наверное лучше кухню-гостиную и одну комнату для ребенка? Поделитесь советами пожалуйста. Двое взрослых и ребенок 3 лет.

Oksana"S"
Хороший вариант, спасибо, хватило бы только места в кух-гостиной(
15.07.2015
Ответить
Марина
ЗдОрово, в Вашем варианте кухня фактически остается на своем "законном" месте, т.е. мокрое над мокром, очень удачный вариант, и нет всяких скошенных углов, как в моем :-)
15.07.2015
Ответить
Elena
Не удержалась, чтобы не порисовать ;-)
Размеры подобраны на глаз исходя из площади комнат.
Размеры подобраны на глаз исходя из площади комнат.
16.07.2015
Ответить
Elena
У меня родился еще один вариант.Иногда окна состоят из фрамуг таким образом, что возможно их разделить и построить стену. В нашем доме окна состоят из 4 фрамуг и соседи так поделили окно и комнату на 2 части. С улицы окно смотрится как одно, но только вечерний свет выдает это разделение. И конечно в этом случае надо решить вопрос с отоплением, так как батареи обычно располагают под окнами. Но если эти вопросы можно решить, то может быть расмотреть вопрос с микроскопическими спальными. Примерно так:
Здесь я бы предложила в спальной взрослых построить подиум от стенки до стенки. Детская тоже получается маленькая. Но зато у каждого есть свой уголок.Ну и все остальное... Кухня на месте бывшего коридора. Со стороны прихожей кладовка со стиральной машиной.В гостиной зоне 2 маленьких диванчика. Большие могут смотреться громоздко на такой площади...
Здесь я бы предложила в спальной взрослых построить подиум от стенки до стенки. Детская тоже получается маленькая. Но зато у каждого есть свой уголок.Ну и все остальное... Кухня на месте бывшего коридора. Со стороны прихожей кладовка со стиральной машиной.В гостиной зоне 2 маленьких диванчика. Большие могут смотреться громоздко на такой площади...
14.07.2015
Ответить
Oksana"S"
А если сделать просто одну спальную зону для родителей и ребенка как к вас, и кухню гостиную? Вот вы живете в таком варианте? Как вам?
14.07.2015
Ответить
Elena
Мы замечательно! Но сын растет... И в его лет в 5 уже захочется как-то уединиться (сейчас пока 4), он многое понимает.
14.07.2015
Ответить
Oksana"S"
Да, так то оно так конечно. Ну можно переехать в гостиную взрослым а комнату оставить ребенку
14.07.2015
Ответить
Elena
Все же спать в гостиной я бы не хотела, особенно после кровати. Тот вариант что у нас, хорош для маленьких детей, но мы так и рассчитывали. Далее все же планируем создать возможность отдельной комнаты для детей.
14.07.2015
Ответить
Svetlana
А я бы лучше оставила отдельные комнаты. Ребенок подрастет. Либо вам не уединиться, либо ему дискомфортно. А из ситуации с кухней я вышлабы иначе:
Хоть на пару кв метров, но больше. И при этом изолированные комнаты. Для двоих взрослых 8 метров маловато, но и ребенку отдавать такую крошечную не справедливо, когда у самих 16 будет. А по 10 и 12 это справедливо. Ребенку не тесно и вам можно вполне разместиться вдвоем.
Хоть на пару кв метров, но больше. И при этом изолированные комнаты. Для двоих взрослых 8 метров маловато, но и ребенку отдавать такую крошечную не справедливо, когда у самих 16 будет. А по 10 и 12 это справедливо. Ребенку не тесно и вам можно вполне разместиться вдвоем.
13.07.2015
Ответить
Oksana"S"
Плита электрическая, дом 16 этажный. Интересный вариант получается)
13.07.2015
Ответить
Elena
Неудобство в этом варианте, что кухня на проходе.
И в рисунке могла ошибиться с масштабом. Ве же площадь небольшая и могла нарисовать мебель так, что на фактических размерах так не встанет. Но как идею можно рассмотреть... Или что-то взять из нее ;-).
14.07.2015
Ответить
Svetlana
Интересно! Только вот спальня проходная на кухне немного смущает. Хотя ребенок и в отдельную комнату может внезапно нагрянуть и застать в неудобной ситуации.
13.07.2015
Ответить