В поисках идей для перепланировки
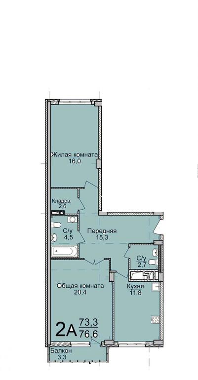
Перепланировки стен. Согласование перепланировки квартир и нежилых помещений.ДД, через неделю получаем долгожданные ключи (ждали аж 3 года!)и вот все думаю я о том, как выкроить еще одну спаленку. Проблема в том, что практически все стены несущие. Вроде и метраж не так уж и мал (72кв.м), но не складывается картинка у меня... Может кто поделится идеями,а ? 
Надежда
К кухне часть холла добавить и оттяпать часть гостиной, те стенку между кухней и гостиной сдвинуть примерно на 0,50-0,8 м дальше. И получится большая кухня
03.11.2016
Ответить
Оксана (дизайнер, инста: @persona_story)
Все комнаты (кухню и гостиную) оставить на своих местах. Т.к. перемену местами могут не узаконить (хотя, не знаю, какие у вас в вашем районе "законы")....
Стена между кухней и гостиной несущая, полагаю? Заложить часть проёма между этими комнатами таким образом, чтобы цифру "1936" довести примерно до 2400-2500. Двуспальную кровать можно поставить "лицом" к окну, а кровать (спальная зона) будет закрываться дверями-купе (или шторами, как бюджет...).
Забыла добавить: заложить проход в гостиную из холла.
И, кстати, туалет можно увеличить за счет коридора с тем, чтобы туда поставить угловую раковину для избежания "пробок" в "час-пик". И можно сделать очень вместительный угловой шкаф от туалета до кухни, правда, проём на кухню перенести ближе к стояку (который находится в холле). И кухню можно сделать функциональнее. Может быть, даже с диваном..... Но тут надо смотреть.
Короче, можно сделать "конфетку". Хорошая планировка ))))))
02.11.2016
Ответить
Евгения
Мы сделали из самой большой комнаты кухню-гостиную, остальные комнаты - спальни. У вас очень удобно расположены коммуникации - стояки и вентиляция рядом) Стены переносить - дорогое удовольствие и комната без окна плохо
01.11.2016
Ответить
Танюшка
присоединюсь, присоединить к кухне часть зола и сделать стулию, а гостиную сделать не проходной и из нее спальню.
01.11.2016
Ответить
Елена
А можно от холла кусок отщипнуть? Вот где надпись "Холл" - там построить новую стену и снести старую. Туда поставить кухонный гарнитур небольшой (только вдоль стены), потом вдоль стены поставить стол, повесить тв и напротив него диван. (проход в гостиную заложить). Сложно будет на балкон попадать только...
Если готовить не очень любите и не проводите по 3 часа на кухне, можно отщипнуть от кухни место до прохода в гостиную или чуть больше и поставить туда кухонный гарнитур. Даже угловой получится)) Если будет освещение над рабочей поверхностью, то не вижу ничего страшного в отстусвии окна. Вечером зимой люди же готовят. Ну и вытяжку хорошую. У вас получится спаленка метров 10 =) Как раз кровать влезет. А шкаф запихнете в огроменную гостиную, как и обеденный стол.
31.10.2016
Ответить
Елена
я бы себе сделала, наверное, кухню в коридоре. Но я готовлю просто - накидала в мультиварку, нашинковала и забыла. Не люблю это.
На бб был прекрасный пост на эту тему, но сейчас найти не могу, пишет удален. Помню назывался как-то "кухня в коридоре" или что-то вроде.
31.10.2016
Ответить
Виктория (дизайнер)
Если спальню еще одну хотите - то только кухню и комнату местами менять. Но, это незаконно и соответственно, никто вам такую перепланировку не согласует.
Других идей нет - у вас всего 3 окна, значит 3 комнаты.
31.10.2016
Ответить
Ирина Глебова
Я еще такой вариант по разделению гостиной рассматриваю( извините,если чье-то фото утащила):
31.10.2016
Ответить
Виктория (дизайнер)
и останется у вас комната 10 кв м, еще и неправильной формы. Вы там ничего не сможете разместить, даже кровать нормальную не поставите.
Можно у холла откусить площадь, оставив место только для вешалки и тумбы в прихожей и присоеденить балкон к кухне. Кухня-гостиная у вас прям не выйдет, но получится большая кухня с диванчиком и тв. А если поставить барную стойку и стол-трансформер (это который из журнального раскладывается в обеденный), то будет кухня-трансформер.
31.10.2016
Ответить
Виктория (дизайнер)
Вам Алена такой вариант на час раньше предложила)
Если сами не победите свою плвнировку - обращайтесь.
https://m.babyblog.ru/user/id2224057/55751
31.10.2016
Ответить
Алёна фотостудия Мгновение Железнодорожный
Если проблем с вытяжкой нет, можете добавить часть хола и будет у вас кухня-гостинная в 16 кв..+ у вас балкон из кухни,там можете зону хранения кухни сделать...
Даже без присоединения 14 кв достаточно для кухни-гостинной...
31.10.2016
Ответить
Марина
Посмотрите, как вот тут переделана кухонная зона и спальня https://www.babyblog.ru/community/post/housedesign/3141073
31.10.2016
Ответить
Оставшиеся комментарии доступны после регистрации
Зарегистрируйтесь и получите полный доступ ко всем функциям сайта.