Планировка студии. Хэлп!
Прошу помощи в расстановке мебели/планировке. Хочется по максимуму выжать из этой студии. Точных размеров стен, увы нет -только схема ниже. Если кто-то опытный сможет по этой картинке сделать схему с измерениями -буду премного благодарна!

В идеале, хотелось бы видеть в итоге нечто вроде следующего (там правда 34 кв.м, поэтому понимаю, что на 100% - нереально). Гардеробная-точно не влезет =)

Elena
Воспользовавшись схемой Екатерины, предложу подумать в этом направлении:
В спальной я бы предложила построить подиум вместо кровати (для пары). Внутри подиума могут быть ящики для хранения.
Или просто детская кровать, если для ребенка.
В спальной я бы предложила построить подиум вместо кровати (для пары). Внутри подиума могут быть ящики для хранения.
Или просто детская кровать, если для ребенка.
15.11.2016
Ответить
Ekaterina http://soulflat.ru/
Мне тоже, вполне, нравится, какой у Елены получился план. Единственное, что раковину от холодильника нужно будет отодвинуть, хотя бы, на ящик шириной 300 мм, чтобы рабочая поверхность была и справа и слева от раковины. Тоже самое с плиной.
16.11.2016
Ответить
Ekaterina http://soulflat.ru/
Добрый день, Хельга!
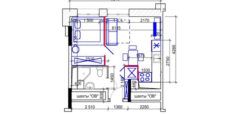
Я перечертила вашу планировку, размеры тоже поставила. За "точку отсчета берется ширина столешницы на чертеже, а она, обычно, 600 мм.
Теперь вы можете в масштабе "поиграть" с планировкой, возможно, что-то и подберете.
А дизайнеры работают с реальными замерами квартиры, а не с тех. планами. Потому что на плане дверь/окно/колонна может быть обозначена в одном месте, а по факту быть смещенной на 200 мм. А пересчитывать планировку по 10 раз никому не интересно)
15.11.2016
Ответить
Дизайнер 3D
Здравствуйте. Разработаю Дизайн проект интерьера любого помещения.Заходите в мой дневник, пишите, звоните.Моя почта 89161649464@mail.ruМТС Москва 8-916-164-94-64 звонить с 9 - 30 до 21 - 00 по Москве.
15.11.2016
Ответить
Таисия
Вам можно так:кухня,стол,вплотную диван, стенка с Телеком,а за ним спаленка. Находила недавно пример,оч понравилось,делюсь:








15.11.2016
Ответить
Мимими
Красивые картинки, спасибо. Мне бы понять -впихнутся ли все эти "хотелки" в реальное пространство площадью 26 кв.м.
Поэтому приложила свой план квартиры.
В ваших вариантах -оч. большая площадь. Кухня-столовая на 2 окна -это очень просторно. У меня во всей квартире -только 2 окошка, увы.
15.11.2016
Ответить
Таисия
Здесь тоже 2 окна,просто перегородка стоит посередине одного широкого окна,и в кухне поуже окно. В реале линейная кухня и правда мало места занимает,стол укзкий см 60,кррвать модно поставить 140 или 160 вдоль стены,так экономнее место.
У подруги у меня в студии было так: кухна и стол большой, диван угловой и на тумбочке телек. И все комната заканчивалась,но они просто часть стены,бещ окна отгородили гипсокартонной перегородкой без двери на размер кровати,больше ничего туда не влазило,зато можно было лечь на диване и на кровати не видя никого...если по факту у вас будет очень тесно,то попробуйте так...
15.11.2016
Ответить
Таисия
вот попробовала изобразить на примере (стенка была под углом, чтоб зал был пошире, а в спаленку только кровать влезла; с/у маленький-душ и туалет и крохотная раковина, прям только руки помыть 20*40 может, но там был стеллаж под вещи и шкаф в прихожей). на плане нарисовано тесновато, но в реальности место для передвижений и тп есть, комфортно было
15.11.2016
Ответить