Кто еще живет в хрущёвках
Вопросы и ответыУ кого двушки смежные
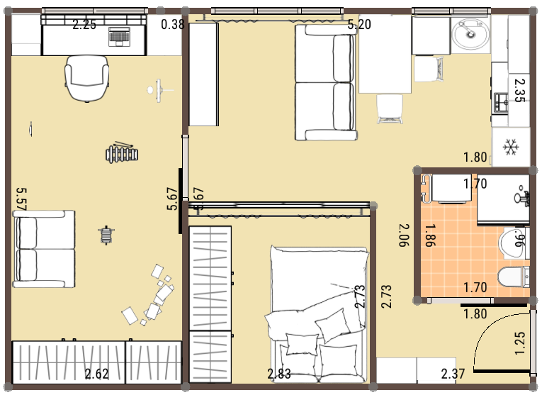
Покажите пожалуйста, какой у вас ремонт а точнее распланировка мебели..
Рыжая
Обычная двушка, вагончик.
Ремонт пока закончен в коридоре и санузле, на кухне все коммуникации сделаны, электрика по всей квартире заменена, в детской стоит шкаф-купе, диванчик, и приобретено часть мебели у окна. Приобретена двуспальная кровать 160*210 в спальню. По плану вроде все вмещается. Только у шкафов в спальнях, где по одной дверце там полки, где 2 дверцы - там штанги. В коридорном высоком шкафу на верху небольшая полка для несезонной обуви, потом штанга для длинной верхней одежды, и еще пылесос в него ставлю, дверца с зеркалом на всю дверь, что делает более светлым проходик из коридора. Тумба в коридоре высокая на 3-и полки + просто зеркало над тумбой на стене.
По всей квартире двери-купе для экономия пространства.
План часть мои идеи, часть мамы.
.
.
.
.
.
.
.
Конечно идеи и факт различны, нет всяких аксессуаров и возможно выгледет лысывато, но это же идея и я не дизайнер, чтоб на картинке продумать о мелочах.
По аналогии делала перепланировку двушки подруге, но у них торцевая, и спальни получились более квадратные, кухня-гостинная поменьше, но коридор чуть больше, поэтому огромный шкаф в коридоре. Им планировку делала из размеров имеющейся мебели, поищите в сообществе, я как-то размещала их перепланировку с расставленной мебелью.
.
.
.
.
.
.
.
Конечно идеи и факт различны, нет всяких аксессуаров и возможно выгледет лысывато, но это же идея и я не дизайнер, чтоб на картинке продумать о мелочах.
По аналогии делала перепланировку двушки подруге, но у них торцевая, и спальни получились более квадратные, кухня-гостинная поменьше, но коридор чуть больше, поэтому огромный шкаф в коридоре. Им планировку делала из размеров имеющейся мебели, поищите в сообществе, я как-то размещала их перепланировку с расставленной мебелью.
07.01.2017
Ответить
Виктория (дизайнер)
Коридор у вас между санузлом и спальней очень узкий, а это основной проход в квартиру. Вы по нему мебель не внесете. Дверь из ванны, которая открывается на коврик в прихожей, тоже не лучшее решение.
Если на вскидку, то вот так: одну из стен скосить и в нее дверь устанавливать. В спальне мебель, конечно придется по-другому поставить, но нет ничего невозможного )
Так же, предложу вам свою помощь в перепланировке. Подробнее по ссылке http://fanblack89.wixsite.com/planirovka
07.01.2017
Ответить
Рыжая
коридор узкий - 96 см, самое сложное было матрац от кровати внести, но он гибкий - втащили, остальная мебель в разобранном состоянии вносилась. Специально не чего не скашивали: санузел и так малепусенький, щас хоть спокойно можно вытираться размахнувшись руками и ни чего не задев и сушилку поставить для белья есть куда. Кровать в спальне 160х210, если скосить угол не поместится. Дверь в санузел - купейная (все двери в квартире купейные, даже от шкафов-гардеробов, кроме входных), ни чего не задевает, ни кому не мешает, а коврик от прихожей лежит между входными дверьми - их две и между ними расстояние почти 40 см.
Спасибо за предложение о сотрудничестве.
09.01.2017
Ответить
Виктория (дизайнер)
Ой, я думала вы автор поста. (с мобильника сидела, кажется не доглядела). Раз у вас уже все решено, советовать поздно))
Насчет разборной мебели...а диван? Вот недавно диван вносили в квартиру с подобным коридором, правда он покороче. Вообщем, внесли с волшебными словами-помощниками
Если углы срезать в спальне мебель надо переставлять, конечно. Кровать такая поместится.
Если углы срезать в спальне мебель надо переставлять, конечно. Кровать такая поместится.
09.01.2017
Ответить
Рыжая
диван в разобранном состоянии заносили: спинка, боковушки + сидушка и выкатная система еще из 2-х частей, потом собрали и всё, там ни чего сложного, я сама его даже могу собрать и разобрать.
09.01.2017
Ответить