Пост для обсуждения планировки.
Перепланировки стен. Согласование перепланировки квартир и нежилых помещений.Девочки, всем доброго вечера. 
Пост создала для всех, кто столкнулся с проблемой "впихнуть невпихуемое".
Обратилась ко мне Ольга за красивым интерьером.
На данный момент наша задача найти оптимальное планировочное решение, что и послужит основой для чудесного интерьера)
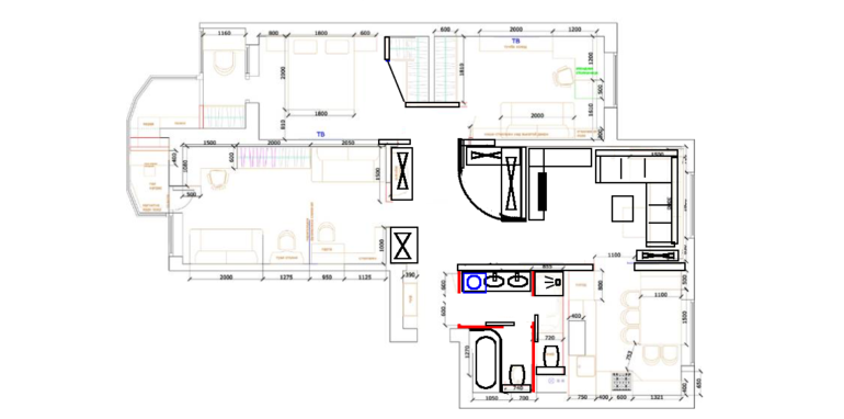
Задача у нас нелегкая) На 98 квадратах нужно разместить комнату для двух девочек разного возраста, комнату для сына-подростка, спальню для родителей, кухню-гостиную, два санузла и выделить максимальное количество места для хранения.
Буду рада если кто-то из коллег предложит свое решение. Возможно, я что-то упустила.
Остановились пока на варианте номер три.

Nataly Mikheenko
Очень повеселила цель сообщения, просто подняли настроение на раз-два! А если серьезно, то готовы помочь во всем, в том числе подборе обоев, тканей для штор и мебели, аксессуаров. http://ledimore.ru/katalog/oboi/skladskaya-programma.html
21.09.2017
Ответить
Анатолий Николаевич
Если будет показана стрелка компаса,то могу рассказать когда возможны подъемы по судьбе.а когда серьезные заболевания у спящих по одной из спален,которая для Вас предпочтительна.
08.02.2017
Ответить
Виктория (дизайнер)
Я бы ещё стол из кухни перенесла в гостиную, возле окна.
А на кухне чисто кухню для приготовления сделала. Дополнительное место отдать под гардеробную или кладовую
08.02.2017
Ответить
Mira
Коллегам за идею процент дадите?) Или вы по доброте душевной Ольге помогаете?
07.02.2017
Ответить
Анастасия Сакральная Архитектура и Дизайн
Мира, брысь отсюда со своим неуместным троллингом😊😊😊
07.02.2017
Ответить
Елена
А вопрос можно? При такой площади у всех детей раскладные диваны? или это полноценные кровати?
07.02.2017
Ответить
Елена
спасибо. А в комнате для девочек вы хотите разделить пространства? Я своим сыновьям планирую по одной стене ставить 2 кровати, а напротив шкаф для одежды, книжный и комод с тв.
07.02.2017
Ответить
Ольга. Строю дома www.kamen-dom.ru
с моими девочками так не получится, их лучше разъединять и чем дальше друг от друга тем лучше)))
07.02.2017
Ответить
Ольга. Строю дома www.kamen-dom.ru
Потому что делят территорию, игрушки, вещи, кровати. Большая разница в возрасте, старшая не хочет с младшей общаться.
07.02.2017
Ответить
Ольга. Строю дома www.kamen-dom.ru
у Вас у девочек разница 2 года, конечно лучше вместе. У моих 6 лет. Старшая уже одной ногой в подростковом возрасте. Малышня только в садик собирается, говорит еще еле-еле.
07.02.2017
Ответить
Elena
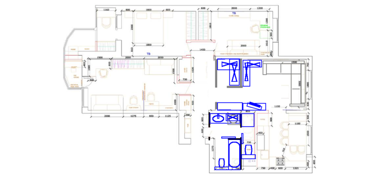
Не знаю на сколько нужны шкафы у окна в гостиной, но я бы предложила такой вариант:
И мне не очень нравится решение с зоной туалет/ванная. Конечно, площадь большая и всего там много, но может сделать зоны? Входишь - под одной столешницей 2 раковины и стиральная машинка. В туалете выделяем зону для душа 90 на 90 (80 на 80, если этого достаточно). И унитаз в ванной. Двое моются и двое умываются.
И мне не очень нравится решение с зоной туалет/ванная. Конечно, площадь большая и всего там много, но может сделать зоны? Входишь - под одной столешницей 2 раковины и стиральная машинка. В туалете выделяем зону для душа 90 на 90 (80 на 80, если этого достаточно). И унитаз в ванной. Двое моются и двое умываются.
07.02.2017
Ответить
Ольга. Строю дома www.kamen-dom.ru
Спасибо, Лена. Так стенки перенести не получится, дом панельный.
07.02.2017
Ответить
Elena
Если так важны места хранения, то может от гостиной все же можно отщипнуть немного для гардеробной/шкафов? Может быть так:
07.02.2017
Ответить
Ольга. Строю дома www.kamen-dom.ru
Не нравится мне такой с/у совсем, мы сейчас от такого избавляемся, места мало, все друг на друге, не развернешься. Таз поставить некуда, сушить белье негде.
После дачи совсем заходить туда не хочется))) Я стала отвозить вещи на дачу - постирать.))))
07.02.2017
Ответить
Ольга. Строю дома www.kamen-dom.ru
Нужна-нужна!!! Вот про гардеробную в гостиной уже думаю...
07.02.2017
Ответить
Elena
Оль, а расскажи как можно так разместить туалет и провести канализацию? Это реально? Ведь слив довольно широкий.
07.02.2017
Ответить
Ольга. Строю дома www.kamen-dom.ru
Можно, без проблем, по стенам пойдёт, даже видно не будет
07.02.2017
Ответить
Анастасия Сакральная Архитектура и Дизайн
Тоже выскажу своё мнение по предложенному варианту. У нас есть возможность еще немного заузить холл для размещения второго ряда шкафов, а вот создать еще один узкий коридор в зал не считаю удачным решением...Но вариант имеет место быть)
07.02.2017
Ответить
Лана
По теме ничего дельного не посоветую, а вот планировка у вас шикарная ? Что это за дома? Поделитесь информацией 😊
07.02.2017
Ответить
Ольга. Строю дома www.kamen-dom.ru
Шкафы очень принципиальны и в с/у тоже. В общей сложности на 5 человек надо около 10-ти метров хранения. Все впритык, еле-еле все вместили.
07.02.2017
Ответить
Ольга. Строю дома www.kamen-dom.ru
Померила свой с/у, он 800. Стандартный размер. Так что 740 нормально!
07.02.2017
Ответить
Ольга. Строю дома www.kamen-dom.ru
Интересно, как раз вопрос с прихожей решается и вещи есть куда повесить.
07.02.2017
Ответить
Elena
И вот такие мысли (с/у, гостинная, кухня):
Хотя, наверное, вы уже определились...
Хотя, наверное, вы уже определились...
10.02.2017
Ответить
Ольга. Строю дома www.kamen-dom.ru
Лена, спасибо большое!!!! Мы ещё не определились
11.02.2017
Ответить
Elena
Можно оставить один умывальник и там, где стиральная машина сделать большой шкаф до потолка. Их можно поменять местами.
07.02.2017
Ответить
Ольга. Строю дома www.kamen-dom.ru
мы сделали комнату проходной ради большого нормального с/у где есть большая ванная и раковина, биде, шкафы...
07.02.2017
Ответить
Виктория (дизайнер)
Я думаю, что проход в ванну и туалет через входной коврик - это не удобно. Вот вышел ты из ванны и сразу на грязную зону прихожки попадаешь. Мы же в России живем, обувь где-то с улицы просушивать надо.
Но это мое личное мнение - люблю босиком ходить.
Я бы в этом направлении подумала
07.02.2017
Ответить
Ольга. Строю дома www.kamen-dom.ru
мы сейчас так на кухню и в туалет ходим - "через половичок" уже привыкли)))
полы моются чаще и обувь прячется тщательнее
07.02.2017
Ответить
Виктория (дизайнер)
Ко всему можно привыкнуть. Но это же не значит, что так правильно. А шкаф в прихожей для верхней одежды считаю очень нужной вещью
08.02.2017
Ответить
Мария Ч
Я не дизайнер совсем. Но просто на свой вкус выскажусь. Ванная, детская для девочек и кухня из 1. Спальня родителей из 2 варианта. Гостинная и комната сына - из 3. Именно из удобства и личных предпочтений нашей семьи. А так, конечно, как заказчикам удобнее будет.
07.02.2017
Ответить
Мария Ч
Точнее, гостиная из 2-х вариантов. Диван как в 3, а кресла и шкаф - из второго.
07.02.2017
Ответить
Ольга. Строю дома www.kamen-dom.ru
От себя добавлю. Важный момент, в кухне одновременно должны комфортно размещаться 5 человек, тоже самое в гостиной - совместное прибывание (например просмотр фильмов) 5-ти человек. Хранение - по 1 шкафу на человека и не менее 3х метров общего хранения и хоз.нужд. Очень жду комментариев! Всем спасибо.
Насте в особенности
07.02.2017
Ответить
Юлия
шикарная площадь ))
почему не хотите обеденный стол поставить в гостиной у окна?
тесно будет на кухне
07.02.2017
Ответить
Ольга. Строю дома www.kamen-dom.ru
Там шкафы)) и не хочу терять гостиную как комнату
07.02.2017
Ответить
Юлия
жаль. может в гостиной не делать шкаф вокруг окна, а при вхоже слева? чуть подвинув диван
07.02.2017
Ответить
Ольга. Строю дома www.kamen-dom.ru
тогда доступа к шкафу не будет, диван угловой, и двигать его придется не меньше чем на метр
07.02.2017
Ответить