Совмещать ли гостиную и кухню?

Прекрасная квартира и нет смысла что-то совмещать.Да и по опыту.когда совмещается гостиная с кухней,то это всегда влияет на удачливость. Изобразите стрелку компаса и я расскажу при каком положении кровати будет удачливость в какой год. Занимаюсь инженерией энергетик в жилье. Подробности в дневнике.
15.02.2017
Мы совместили кухню с гостиной и часть коридора - получилась такая студия. Мне нравится. Много свободного пространства.
14.02.2017
Спасибо, тоже будем наверное что-то делать.
15.02.2017
Кухню расширить, но не совмещать
14.02.2017
Я бы посоветовала обратиться к профессионалу, чтобы вы совместно разработали вариант, который подходит именно вам. Можно думать и в этом направлении:
13.02.2017
Лена, спасибо большое!) Будем думать дальше....Идея с еще одной изолированной комнатой , как тут уже советовали прельщает, но вот коридор и проход к спальням .....
13.02.2017
Если так, то кухня-гостиная будет шикарная и место для гардеробной.
14.02.2017
а если диван на место ТВ, а ТВ повесить над столом. Так попросторнее будет
14.02.2017
Возможно... некоторым не ноавится смотреть ТВ через стол, а кому-то нормально... тут каждый ссм может решить.
14.02.2017
Лена, спасибо, вот этот вариант нам ближе всего, только тоже подумала диван к стене поставить, чтобы по просторней было.
15.02.2017
Вот такой вариант: Или отодвинуть стену с ТВ, только рабочаяповерхность кухни уменшится.
15.02.2017
Елена, вы талант. Не перестаю вами восхищаться.
15.02.2017
Это точно!☺
15.02.2017
Елена, спасибо!) Первый вариант мне больше всех понравился, готовлю часто поэтому рабочую зону кухни не хочется уменьшать!) А с гардеробными комнатами подумаем делать ли их.
15.02.2017
Да, я об этом тоже подумала, чтобы диван к стене поставить, может просторнее будет.
15.02.2017
Так можно оставить комнату, если 3-я не нужна, я бы просто объединила
13.02.2017
Лично мне кажется,что это прекрасный современный вариант. Для себя другую и не рассматриваю на будущее, когда будем из однушки переезжать.
13.02.2017
Добрый день! Смотрите по своему образу жизни, ведь объективно в такой планировке есть и плюсы, и минусы! Если решитесь на более чем 30-метровую гостевую зону, то советую подумать над вопросом размещения гостей на ночь. Можно установить между кухней и гостиной раздвижную перегородку, существующий вход в гостиную заложить. У меня был проект с подобным объединением, на плане выглядело так:
13.02.2017
Воот! Я сеоодня тоже подумала про эти раздвижные двери, только думала чтоб вход оставить... Спасибо за идею!)
13.02.2017
Соседи из Водников?Мы из дома 13 корп.2
13.02.2017
Да, из Водников! ) Очень понравился этот район!)
13.02.2017
Елена, а дом какой? У нас просто такая же 3-ка☺
13.02.2017
Вы тоже из Водников?6 корпус у нас там, это строительный адрес .
13.02.2017
😎 а этаж какой? Соседи мы)))
13.02.2017
Нет! Никакой нужды для такого издевательства нет. У вас огромная кухня, шикарная планировка. Зачем вам это???
13.02.2017
Я бы совместима. Будет шикарная кухня
13.02.2017
Оставшиеся комментарии доступны после регистрации
Зарегистрируйтесь и получите полный доступ ко всем функциям сайта.
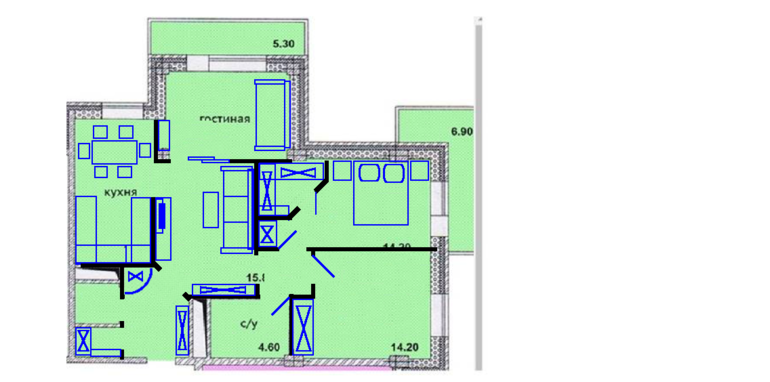
Пост для обсуждения планировки. Как вчетвером разместиться в квартире с такой планировкой?