Помогите спланировать кухню!!!
Интерьерное решение кухниДобрый вечер! Прошу Вашей помощи, так сама я уже не в состоянии принять решение). Купили долгожданную трешку. И вот подошла очередь ремонта кухни. Подскажите, посоветуйте,какое расположение мебели, рабочей зоны наиболее удобное и функциональное, на ваш взгляд? это размеры моей кухни. стена 1290 это вентиляционная шахта. технически, так сказать, мойку и варочную панель можно разместить где угодно в принципе. Обязательно хочу посудомойку на 60 см
Очень хочу иметь пенал для хранения продуктов. и зону обеденную. мысль поставить скамью с ящиками и кинуть поролоновый матрасик. типа такого, но с одной скамьей 
кухню хочу белую. Нравится икеевская с фасадами будбин. Посмотрите какие варинанты у меня есть на сегодня 
В этом варианте не устраивает все же расположение обеденного стола. Посмотрите может , что посоветуете?) 
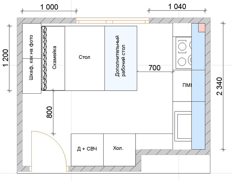
Здесь необычное такое расположение. У окна работать всегда прикольно) Буду благодарна, если кто-нибудь поможет воплотить проект на бумаге в программе типа проектировщик. Чтобы посмотреть визуально, как это будет примерно хоть выглядеть
Я за помощью обратилась в фирму по встроенным кухням. Мне предложили 2 варианта:

и второй вариант:

Девочки, дорогие помогите все-таки спланировать мне кухоньку моей мечты!!!
Вот еще один вариант предложили. Он похожий на магазинные: 
что-то наподобие этого, если плиту можно в любое место ставить
тогда при входе не будет загромождения