Однокомнатная квартира для девушки
Авторские проекты дизайнеров.(Посты не по теме будут удаляться!)Пока готовим проф. съёмку, покажу немного своих кадров завершенного проекта.
Квартира хоть и маленькая (типовой дом в Митино) но получилась милой и уютной. Подвели только строители, которые были "от заказчиков" и уровень их исполнения оставлял желать лучшего. Работа с дорогими материалами ответственная и требует внимания, но в данном случае докупали некоторую плитку поштучно из-за кривых рук (сколы, трещины, кривая резка), фартук заставила снимать 2 раза 🙄 а про покраску стен молчу, я бы и то ровнее покрасила (
Но все равно этот объект мне дорог и с заказчиками остались в хороших отношениях.
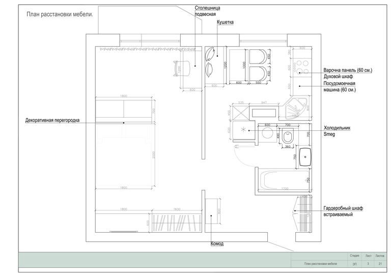
На плане всё довольно просто, по итогу изменили положение дивана, холодильник решили сделать встроенным и на кухне остановили на столе со стульями

Кухня

Комната

Прихожая

Санузел

Фото
Извините за "заваленные горизонты" ☹️










Спасибо за просмотр!
Инстаграм @sova_interiors

мы весь антиквариат сбили без жалости)