Проект кухни, нужны советы

делайте кухню по одной стене, убирайте диван и ставьте полукресла. И место освободиться и попе мягко.
28.09.2019
Спасибо! Решили ставить по одной стене, а вдоль короба думаем поставить холодильник и шкаф с духовкой.
04.10.2019
Ваш первый вариант, мне кажется, вообще неудобен. Достаешь из духовки противень и? куда его? Хорошо ,если на плите не стоит кастрюля. Стол сзади, неудобно. Нужно нести все это дело за угол. Да и правильно написали уже, дверь-то не будет закрыта все время. У подруги тоже кухня по двум сторонам. Но у нее на второй стороне только холодильник, духовка в колонне и дальше стол с рабочей поверхностью. А мойка, посудомойка, плита, все приборы на другой стороне во второй части гарнитура. Поэтому у нее этот вариант прокатывает. Мне понравился вариант Irylen. И диван, кстати, если что на заказ можно сделать.
27.09.2019
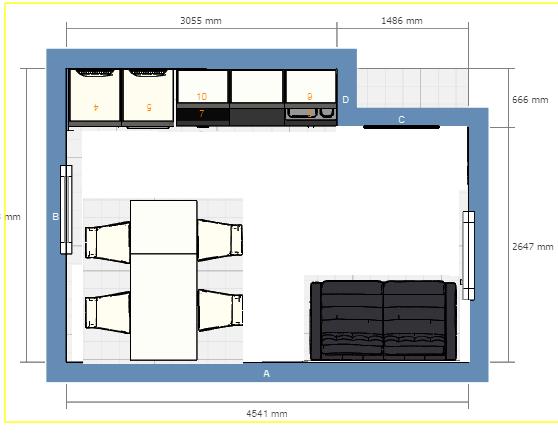
Спасибо, отмели этот вариант. Будем делать вдоль стены
04.10.2019
Вообще не поняла, зачем там диван? Диван на кухне-это всего лишь диван на кухне, никак не гостиная.. я бы не пыталась убить двух зайцев и сделала нориальную кухню.
27.09.2019
Больше негде разместиться, если бприходить гости. Хотелось все варианты предусмотреть)
04.10.2019
А еще такой вариант предполагает, что хозяйка будет готовить на проходе (((
27.09.2019
Об этом забыла подумать! Похоже вариант, действительно, не рабочий (
04.10.2019
Не стоит ради дивана лишать себя удобной, просторной кухни.
27.09.2019
Про второй вариант-не вижу места,где его у вас можно разместить. В первом варианте непонятно много-назначение дивана,удобство и необходимость колонны за углом,размер рабочей зоны-60 см-оооочень мало((
27.09.2019
А если так? Только я бы всё-таки убрала духовку под варочную, тогда между плитой и холодильником появилась еще одна рабочая зона.
27.09.2019
Интересный вариант. Можно ещё под телевизор добавить напольные шкафы глубиной 37 см со стекляными дверцаи.
27.09.2019
Спасибо! Вариант интересный, но не могу сообразить куда поставить бытовую технику. Думаю оставить вот так вдоль стены, а холодильник и шкаф убрать вдоль вент. короба. От дивана, видимо придется отказаться) а боковые шкафы
04.10.2019
Сделайте вдоль окна столешницу со стульями вместо стола, и освободится место под диван, если прям критично место под тусню))) а под нее к дивану столик и пуфы на колесиках))
04.10.2019
Я бы на одну сторону всю кухню перенесла, с двух сторон - совсем не нравится
27.09.2019
Я не представляю себе плиту на самом краю. Это же неудобно и небезопасно. Брызги лететь будут и на пол, и на стол, и на пол, и на торец гарнитура. Колонна с духовкой какая-то несуразная... Гостиная тут, конечно, не получится. Это просто кухня с диваном, которую еще до ума надо доводить.
27.09.2019
так поэтому и спрашиваю, что пытаюсь довести до ума... С плитой вы правы, конечно
04.10.2019
Если у вас есть возможность перенести раковину на другую сторону от двери, я бы предложила сделать кухню по левой стороне по всей длине. А справа весь уголок сделать комфортной зоной отдыха.
26.09.2019
Оставшиеся комментарии доступны после регистрации
Зарегистрируйтесь и получите полный доступ ко всем функциям сайта.
Стол со стеклянной столешницей. Перепланировка. Расположение кухни.