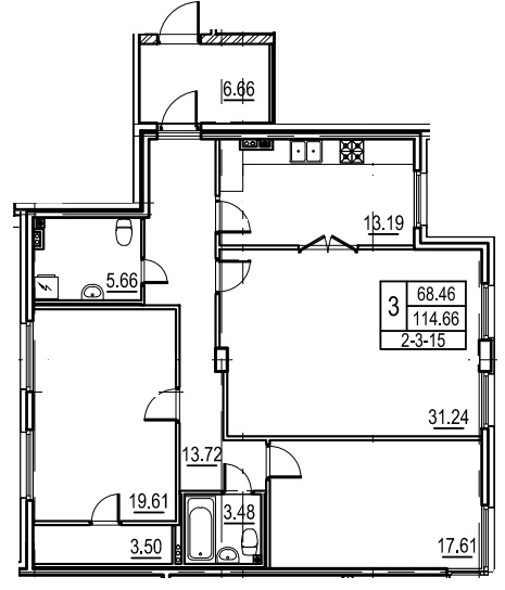
Нужен совет. Перепланировка квартиры 115 кв. м. для семьи с 1 ребенком

По апдейту поста. Минус у последнего варианта только один - пропадает площадь коридора. Получается тамбур на 4 двери
21.11.2019
Я бы к услугам дизайнера обратилась на вашем месте. Как по мне, то оба варианта не очень практичные. В первом вообще сплошные двери в гостиной зоне, правый угол даже не использовать никак из-за этого... куда при такой планировке шкафы ставить для хранения, которые вы хотели бы вписать, даже не представляю. У нас почти такая же площадь, с дизайнером сделали планировку, получилось 3 спальни (из них 2 детские), 2 санузла, у каждой спальни гардеробная и у входа небольшая, небольшой кабинет, кухня-гостиная.
20.11.2019
Простите, немного не по теме.. какой пост читаю и у всех мечта- кухня-гостиная... ну что в этом хорошего? Зачем? Она идеальна будет , если вы не готовите. Вообще. Иначе все всегда будет вонять едой. Про рыбу вообще забыть можно. Ни одна мощнейшая вытяжка не справится. А уж с модой, когда духовка отдельно от варочной панели , вдалеке от вытяжки, вообще труба. Провоняет вся мягкая мебель со временем. Простите, наболело😆
19.11.2019
11 лет живу с кухней-гостиной, площадь 30 кв. Не провалялось ничего. Готовлю часто и рыбу в том числе. Может я что-то не то готовлю)
20.11.2019
Так не бывает) вы уже привыкли, видимо. Но, поверьте, посторонние вас за версту чуют
20.11.2019
Спасибо за ваше очень тактичное сообщение, что я воняю🤦🏻‍♀️ Что-то доказывать вам бесполезно, боюсь представить, что же вы такое вонючее готовите. Но если кто-то подумывает о кухне-гостиной, то хорошая вытяжка и открытые окна на проветривание - и запахов НЕТ.
20.11.2019
Поверьте, я не воняю) я научилась с этим справляться и грамотно проветривать. У меня целый ритуал😆. Но кухня-гостиная- это самое неправильное решение в моей квартире)
20.11.2019
Ну да, действительно, все,кто живёт в хатах с 6м кухнями не пахнут едой ну вообще никак))
20.11.2019
Они не пахнут, они воняют🤢
20.11.2019
Хотя на 6 метрах вполне хватит хорошей вытяжки и открытого окна. А вот в 30 метровом помещении нет, не хватит вытяжки.
20.11.2019
О Боже! У меня невероятный комбо набор. И по новомодному духовка разделена с варкой, и варка аж на острове, и ещё и кухня гостиная единое пространство и, о ужас, столовая далеко от кухни в зоне гостиной, и готовить я люблю и активно это делаю, да ещё и рыбу люблю и другие морепродукты. И конечно я не чувствую запаха, да. А прохожие за версту видят во мне работника столовки 😂 Не выдумывайте всякие страшилки необоснованные. Нормальная вытяжка и вентиляция в помещениях не позволит провонять ничему. 8 лет жила с кухней гостиной 25м2 и ничего не воняло. Сейчас кухня-гостиная 80м2 тем более не пахнет ничего, даже учитывая второй свет в зоне стволовой (по вашей логике весь второй этаж у меня вонять должен). Хотя что говорить, что меня даже из духовки ничем не пахнет, когда там еда готовится. Даже не представляю что за духовка, чтобы пахло из неё так, что аж мебель бы провоняла.
20.11.2019
Речь о квартире. А не о собственном доме. В квартире приточная хорошая вентиляция это окно и сквозняк. Вытяжка, способная обеспечить отсутствие Запахов в помещении 30 метров- это очень мощная и почти профессиональная вытяжка. Из духовки нет запахов? Вы ее не открываете? Блюдо готовое не достаёте?
20.11.2019
Я повторюсь, а то вы читаете не очень внимательно: 8 лет я жила с кухней гостиной 25м2 в квартире. И никаких проблем не было. С профессиональными вытяжками сейчас тоже, слава богу, проблем никаких нет и стоят они не как крыло самолета. К тому же чтобы запахов не было и вытяжка справлялась со своей задачей, надо всего лишь выбрать подходящую по объёму, да придётся немножко напрячь мозги вычислениями, но результат будет. Окно в квартире при приготовлении пищи и после не открывала никогда. При этом запахов не было. Когда я готовлю в духовке, из самой духовки запахов никаких на всю квартиру не исходит. Когда открываю, тогда пахнет готовая еда. И запах этот не въедается ни в диван ни в другую мебель. Если у вас от еды исходят такие ароматы, что способны сбить человека с ног и въесться в диван, возможно вы готовите что-то ну очень экзотическое.
20.11.2019
Учите физику.
20.11.2019
Серьезно? 😂 что Должно произойти со мной после курса физики? Я резко пойму, что вся квартира провоняла, а я просто привыкла? Или может быть в квартире, где не пахло 8 лет резко провоняет диван в гостиной кухне? Я ещё раз повторяю, у меня и в квартире и в доме ничего не пахнет. И не пахло. И уверена пахнуть не будет. А судя по комментам воняет прилично у вас. Так кому физику почитать не помешает?
20.11.2019
Я так поняла, что вам « аромат уюта», то мне вонь) на этом и попрощаемся
20.11.2019
У меня вообще ничем не пахнет. Даже уютом, а у вас аж воняет. Главное грамотно проветривать не забывайте, возможно и у вас воняет перестанет, и даже запах уюта выветрится, о котором вы, пожалуй более моего знаете. Аривидерчи. 👋🏻
20.11.2019
До свидания🤗
20.11.2019
мне первый вариант не нравится тем, что входы в оба санузла на виду. это на самом деле не очень комфортно. и если члены семьи друг к другу привыкают и как-то уже не так на это обращают внимание, то вот когда гости сидят все за столом обедают, а ты такой у всех на виду заходишь и выходишь из туалета - на мой взгляд, это прям дискомфорт....
19.11.2019
Спасибо! Да, я о гостях не подумала, Вы правы) Перерисовала еще 2 планировки, прикрепила к посту
21.11.2019
не нужно избавляться от единственного балкона/лоджии. у вас какой этаж? а можно еще планировку от застройщика
19.11.2019
Здравствуйте, балкона нет, этаж третий. Планировку приложила к посту в конце :)
19.11.2019
в комнате 20 кв.м. не лоджия что ли?
19.11.2019
Вот что нарисовалось ))) В прихожей не стала бы делать гардеробную. Просто шкаф в нишу удобнее, места не занимает. А то у вас элементарно велосипед или коляску негде поставить. На кухне это остров с приставным столом :)
19.11.2019
Спасибо больше за план! Интересная идея с островом и приставным столом и со срезанным углом, возьмем на вооружение) При входе наверное всё таки гардеробную большую сделаем, чтобы больше хлама помещалось) Коляски и велосипеды в колясочной будут стоять. еще придумала варианты планировок, добавила в конец поста, как Вам?
21.11.2019
мне понравилась идея с дополнительным санузлом за счет коридора! кухню только я всё-таки немного бы изолировала, а то холодильник прямо на проходе стоит
22.11.2019
Мне вариант с хозяйской гардеробной и санузлом нравится, возможно потому что у меня именно так. Но минусов не вижу. Тем более у вас на данный момент один ребёнок. В ваш санузел ходить вряд ли будет, удобнее ближний к детской. Он и будет самым часто используемым. Ну и просто на мой вкус очень много дверей из гостиной. Гостиная таким образом превращается у большой коридор. Подумайте куда двери разнести.
18.11.2019
Спасибо за советы) Да, дверей действительно много, вот еще два варианта придумала, прикрепила в конец поста, как Вам?
21.11.2019
В детской, стена, что соприкасается с взрослым туалетом, должна быть занята шкафами, большими для девочки. Неплохо было бы продумать "гостевой туалет" у входа в квартиру, а хозяйскую ванную у спален.
18.11.2019
Почему у Вас джакузи у кабинета и входа, а у спален душ?
18.11.2019
Да, Вы правы, поменяла местами. Я еще другие варианты нарисовала, в конце поста прикрепила, как Вам? Шкафы тоже потом в детской добавлю, пока думаю про расположение стен
21.11.2019
Все ничего. Нелепый тамбур. Сведите под углом стены всех комнат в такую "соту".
21.11.2019
1 вариант
18.11.2019
Похвалить свой ламинат.. Помогите с перепланировкой