У кого обычная комната? Как лучше сделать в спальне гардероб?
Интерьерное решение спальнидевочки, посоветуйте, пожалуйста
В стандартной трешке. Спальня узкая
Вещей куча. Как лучше: отсечь гардеробную комнату (советы по поводу проветривания, расположения дверей раздвижных и прочее) или планировать шкафы по всему периметру? Если есть фото или планы ,буду очень признательна

Sasha05
мне очень нравятся проекты в мистер дорс, там есть и отдельные гардеробные и как часть комнаты, попробуйте у них посмотреть, может какая-то идея прийдет
12.01.2016
Ответить
Сануля
Вот, я себе сохраняла
https://www.babyblog.ru/community/post/housedesign/3176749
https://www.babyblog.ru/community/post/housedesign/3159269
https://www.babyblog.ru/user/id1538177/162861
11.01.2016
Ответить
Ксюша
мне сейчас нравятся такие варианты
его и будем делать, хотя комната у нас 20кв м, но делать гардероб там... это сразу же убить пространство. посмотрела живые фото с гардеробными и не нравится совсем спать в закутке
его и будем делать, хотя комната у нас 20кв м, но делать гардероб там... это сразу же убить пространство. посмотрела живые фото с гардеробными и не нравится совсем спать в закутке
08.01.2016
Ответить
Ксюша
если кровать будет выпирать из шкафа хотя бы наполовину, то ощущения, что надо головой что-то есть не создается )
09.01.2016
Ответить
Ксюша
а картины вы не вешаете на стену над изголовьем? :) у меня всегда картины висят. у знакомых зеркало. а это упасть может гораздо вероятнее чем шкаф на анкерах
09.01.2016
Ответить
Евгения Акимова ПРО Дизайнер
я бы посоветовала отдельный гардероб и спланировать его так. на примере Икеи пишу
с одной стороны полки для хранения сложенной одежды, обуви, глубина 40 см
с другой стороны штанги для одежды на вешалках, глубина 60 см
Итого полезной площади - 1метра. Между ними проход минимум 60 см!!!! это прям супер впритык, особенно для мужчины, но можно привыкнуть
В идеале проход 1 метр. Допустимо и уже относительно свободно 80 см.
Это оптимально хранение, уже опробованное на многих заказчиках и из раза в раз подтверждающее свою правоту.
да, у Вас сейчас выделено 145 см под хранение, но честно говорю, лучше отказаться от тумбочек (возможно даже 1), но зато обеспечить себя надолго умным, удобным складом )))
07.01.2016
Ответить
Мама
я ввой гардероб перемерила. Поэтому и 145 выделила. У меня четко висит на 50 и полки 35. Проход получился 60. Я прохожу))) гардероб чисто мне
09.01.2016
Ответить
Евгения Акимова ПРО Дизайнер
ну можно и так. просто мужчине же точно нужно где-то раздеваться )))
плюс многие берут гардеробные икеа, поэтому я их стандартными размерами оперирую
09.01.2016
Ответить
валерия
Угловой гардероб справа от двери (по рисунку). Только что у дочери в комнате так сделала. Если зазеркалить, то еще и визуально место не отъедает, а наоборот
07.01.2016
Ответить
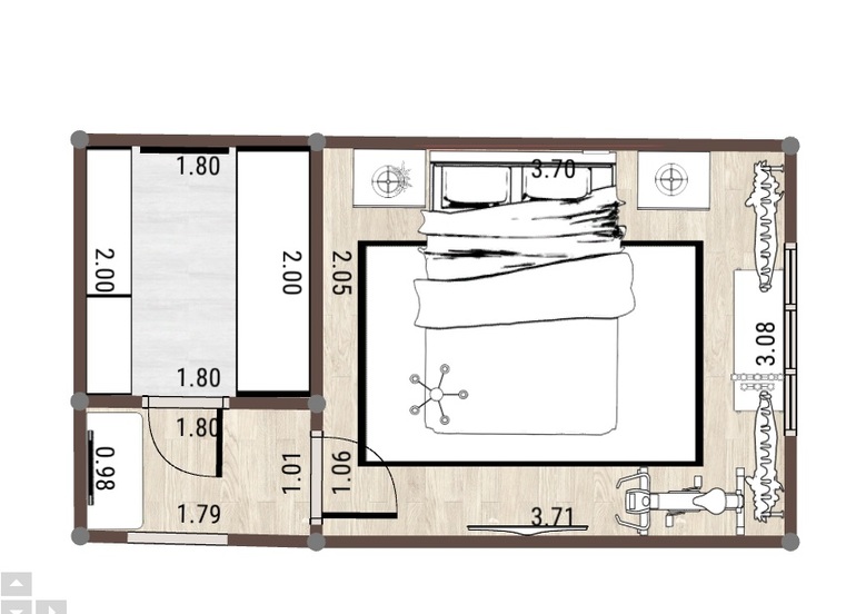
валерия
У меня комната в 2 раза меньше, очень сложно сделать фотку так, чтобы было что-то понятно.
Моей основной задачей было в микрокомнату упихать полноценную кровать, стол , большой шкаф и при этом сохранить воздух и пространство.
Сейчас вам в личку кину
Но вам уже таких крутых вариантов накидали!
09.01.2016
Ответить
Мама
посмотрела. Спасибо. Я как раз и просила, чьоб варианты показали) мне как-то легче тода понять и представить, когда наглядно. Ну и кнч отзывы в использовании-удобно или нет. А у вас кроватка как раз той фирмы, гле я на шкаф запала) с баьочками) как вам качество?
09.01.2016
Ответить
валерия
Она стоит у меня всего месяц, пока сложно сказать. Откровенных косяков не вижу. Дочери нравится очень
09.01.2016
Ответить
Ирина
у меня такая же спальня, такая же расстановка мебели, шкаф угловой,но не буквой Г,а трапеция, я могу зайти внутрь даже, 1,20 на 1,20, всё влезло, но есть еще шкафы в доме.Но у нас еще детская кроватка впихнута, поэтому большой шкаф или гардероб не рассматривался.
07.01.2016
Ответить
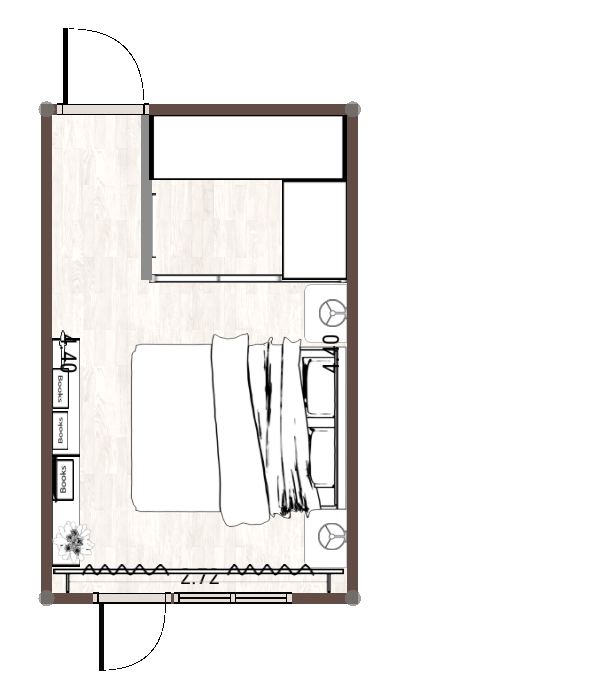
Рыжая
я за гардероб. там должно быть место где переодеться, пока вторая половинка спит, потому-что не всегда встаете утром одновременно, но зато в маленькой комнатушке свет включил и не мешаешь ни кому. Вот мой вариант: на цвета, фасоны и рисунки не обращаем внимание, это просто вариация, размеры кровати вашей не знаю, на плане кровать длина 2 м, ширина 1,8, если у вас другие размеры, то может тумбочки меньше, или гардероб меньше/больше.
07.01.2016
Ответить
Мама
Огромное спасибо за такую визуализацию! А если на углу делать дверь-скошено? Это плохо или тяжело реализовать?
09.01.2016
Ответить
Рыжая
реализовать скошенную дверь не проблема, но во-первых в гардеробе я вам там зеркало во весь рост повесила (на 2 и 3 картинки видно), а основное --- место для одевания-раздевания нужно, а если скосите, то извините одеваться-раздеваться будете с ощущением нахождения в скафандре. И дверь лучше купе ставить как на картинке, т.к. она не "съест" пространство.
Сугубо личное мнение - не старайтесь увеличить скошенной дверью пространство спальни, спальне я считаю это не к чему, да и размеры комнаты у вас нормальные для размещения и гардероба и спального места, да и мала ли какая ситуация, детки вошли и не сразу вас увидят в не той позе которую они ожидают увидеть, а при скошенном угле опа и сразу всё в глаза, а так хоть доля секунды есть, для принятия более или менее приличной позы для детей.
09.01.2016
Ответить
kkatrin
у нас такая же спальня, только длиннее. мы заказали угловой шкаф. тоже думала о гардеробной, передумала)
07.01.2016
Ответить
Оставшиеся комментарии доступны после регистрации
Зарегистрируйтесь и получите полный доступ ко всем функциям сайта.