Дизайнер в загородный дом
Ищу услуги дизайнера.Добрый вечер! Ищу дизайнера в загородный дом (1ый этаж гостинная+кухня) площадь кухни 11кв.м, площадь гостиной 21кв.м ). Интересует планировка мебели в гостиной и кухне.
дизайн ONLINE (бюджетно)
Обращайтесь ко мне) Цены символические
Предлагаю планировку,внесение изменений пока не остановимся на удовлетворяющем вас варианте. Если хотите, напишите в лс, я опишу схему работы.
Примеры в дневнике. Объявление тут, цена оговаривается. И до НГ - акционное предложение (уже 8ой год на ББ делаю скидочную акцию под Новый год - обращайтесь)
14.12.2018
Ответить
Елена
Здравствуйте. Предлагаю Вам, услуги дизайн-проектирования домов и квартир и офисов. Готовые дизайн-проекты, а также разработку индивидуального проекта и 3D визуализация. Консультация бесплатная. Обращайтесь пожалуйста. 8 921 912-35-06 Елена, или ознакомьтесь с моими работами на сайте DizHom
11.12.2018
Ответить
Ольга Горчакова, дизайнер интерьера
Здравствуйте, Мария! Вы уже нашли своего дизайнера?
02.12.2018
Ответить
Ирина Лекарева - дизайнер интерьера
Добрый вечер! Занимаюсь дизайном интерьера с 2009г. Вся информация на сайте http://lekareva.com/ )) Слишком много перечислять)
28.11.2018
Ответить
Евгения Акимова ПРО Дизайнер
если еще актуально и можно в следующем году, то буду рада помочь
https://www.instagram.com/economdesign/
28.11.2018
Ответить
Ярославна Галивец дизайнер интерьера
Добрый вечер. Буду рада знакомству и плодотворному сотрудничеству )))
Ссылка на мой сайт: http://yaroslavnagalivets.com/
Ссылка на мой инстаграм, чтобы лучше понять, кто я есть: https://www.instagram.com/yaroslavna_galivets/
25.11.2018
Ответить
Виктория (дизайнер)
разработаю планировочное решение. Стоимость 100 р за кв м Подробнее
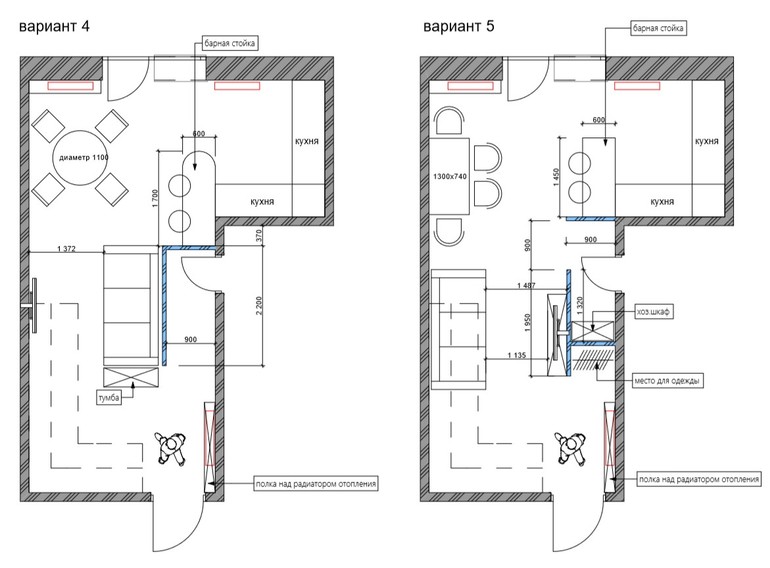
Пример гостиной и кухни в тауне (сам кухонный гарнитур уже стоял) вопрос у хозяйки был в планировании остального помещения
25.11.2018
Ответить
Андрей
Мария, здравствуйте.
Ценник - средний по Москве. Уровень работ сможете оценить по портфолио http://www.r-interiors.su/portfolio/
Состав проекта http://www.r-interiors.su/prices/2/
Рад буду сотрудничеству
25.11.2018
Ответить
Дизайнер 3D
Здравствуйте.
_
Разработаю Дизайн проект интерьера _ любого вашего помещения.
Какая у вас Площадь ?? Стиль интерьера который вы рассматриваете ?? В ответ пришлю или озвучу цену.
Список Услуг https://www.babyblog.ru/user/id2191345/22481
Мой дневникhttps://www.babyblog.ru/user/lenta/id2191345
Без праздников и выходных с 9-30 до 21-00
Цены ниже ББшек и Дизайн студий.
__
Цены доступные для каждого.
24.11.2018
Ответить
Мария
Стиль скорее всего кантри (по стенам будет идти вагонка), площадь 21 кв.м,площадь кухни 11кв.м
24.11.2018
Ответить