Хранение игрушек
Интерьерное решение детской комнатыПодскажите, какие-нибудь симпатичные и удобные варианты хранения игрушек для ребёнка 1,5-2 лет? Скоро у малыша будет своя комната. Дизайнер, которая делала нам проект этого не учла. У моей сестры есть комоды из икеи ТРУФАСТ специальные для детской, но мне они не нравятся. Кажется, что у них вид шкафа, к которому забыли привинтить дверь) Вот такие:

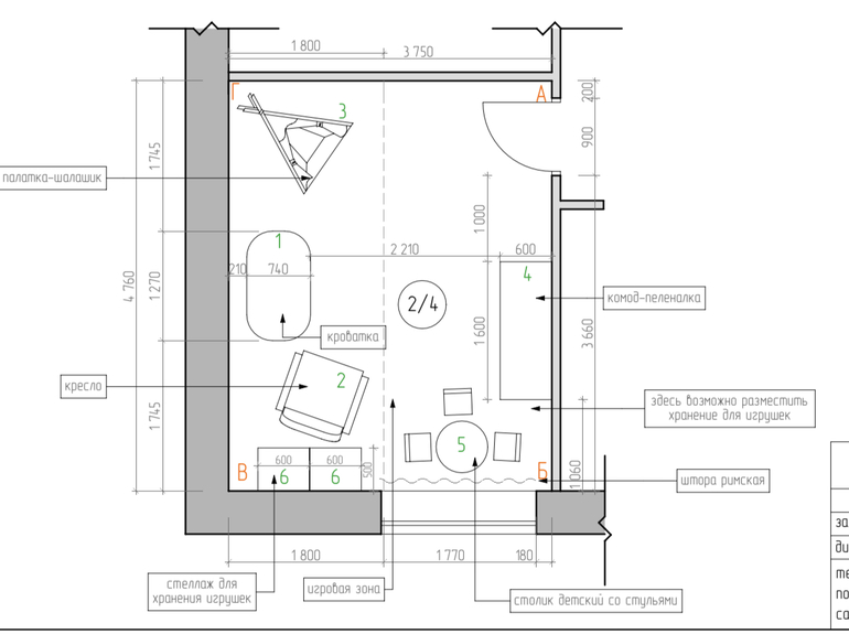
А вот и вид будущей комнаты, Егор на днях был в ней впервые.

JАnna
А можете показать расстановку мебели или план расстановки? У меня тоже детская в мансарде с таким же скосом, сейчас на этапе ремонта ломаю голову как всё надо поставить.
19.05.2019
Ответить
Xenia
Вот и ломала, в итоге обратились к дизайнеру! На картинке мансарда слева получается. На счёт палатки ещё думаю, может как раз там организую хранение игрушек! Дизайнер наша без детей и не представляет масштабы их количества))) достаточного места под них не выделила.
20.05.2019
Ответить
JАnna
Спасибо за схему. У меня чуть поменьше комната 3×4, скос точно как у вас. А вы шкаф для вещей ставить не будете? Я вот думаю по поводу небольшого шкафчика... место для кроватки также как у вас запланировано.
20.05.2019
Ответить
Xenia
Вот я ещё думаю если честно... по идее пока ему вашать особо ничего не надо, все в комод можно складывать. Ну и соседняя комната - постирочная, там тоже можно рейл для рубашек, пиджаков сделать.
Смотрела шкафы детские, те что нравятся стоят прилично.
21.05.2019
Ответить
Татьяна
Зря вы так про Труфаст, очень удобно) ребёнку удобно пользоваться, мало шансов что-то прищемить и выглядит аккуратно. Мы там храним конструкторы разные, но нашему скоро 5 уже)
10.05.2019
Ответить
odri86_(меня зовут Тийна)
Вы знаете, когда я впервые увидела труфаст, когда подыскивала 6 лет назад систему для хранения игрушек для первой дочки, у меня были такие же впечатления, что фасады бы ему и было бы здорово. Но по факту, дверцы - это лишняя возможность прищимить пальцы, особенно, если речь о годовалом малыше. И самому ребенку очень удобно пользоваться этим стеллажем и порядок наводить там тоже. Для лего дупло, если его много тоже очень удобно. За 7 лет мы потом обзавелись еще и каллаксом и металлическим стеллажем из Икеи (редко его встречаю в детских, а тоже удобный и не грамоздкий совсем), но труфаст как по мне самый удобный. Только не для крупногабаритных игрушек, а для средних отлично, советую присмотреться. И выглядит он очень даже нормально, когда привыкаешь ))
08.05.2019
Ответить
Алёна
Плюсую , сейчас бы брала его вместо Каллакс и ящиков , ибо в ящиках удобно хранить только крупные игрушки и то не все , с выдвижной системой удобнее в разы и потом для канцелярии самые неглубокие хорошо использовать
08.05.2019
Ответить
odri86_(меня зовут Тийна)
даже короб, который вставляется в каллакс, уже великоват для мелких -средних игрух, у нас есть и там свалка )) в труфасте,правда, тоже, но там меньше контейнер все же. кстати по этой причине самые удобные мелкие и средние контейнеры, большой у нас только под крупные детали лего, а то до дна далеко )
08.05.2019
Ответить
Алёна
Каллакс под книги отлично и для игр в коробках тоже хорошо , если коробки по размерам примерно совпадают .Видела у девочки обзор , она коробки с играми вертикально хранит .
Ещё для занятий в стиле Монтессори хорошо, когда короба не вставлены, из серии : подойди и возьми что нужно
Но сейчас я думаю над тем , чтобы докупить труфаст дополнительно , либо комод пластиковый как раз для всякой мелочевки , либо взять контейнеры неглубокие и широкие пластиковые и убрать короба частично
09.05.2019
Ответить
odri86_(меня зовут Тийна)
да, для книг, игр в коробках , пазлов каллакс удобен. У нас так и было, но игры потом переселила, ибо слишком их много, а вот если в 2 ряда, то уже не удобно, так как дальние никогда не достаются почти.
09.05.2019
Ответить
Марина
Сначала была огромная стенка для игрушек в виде замка. До определенного возраста заменяла мне и полку для игрушек, и шкаф для одежды. Потом игрушек и одежды как-то незаметно стало чуть больше, чем много и все превратилось в бардак. Сейчас поставили отдельно шкаф для одежды (моя гадебопная😂) и маленький стеллаж "по Монтессори" для игрушек. Количество игрушек ограничиваю только этим стеллажом. Стало намного больше порядка, дочь охотнее убирает за собой все по местам.
Часть игрушек она сейчас утащила играть на кухню, поэтому пустые полки 😉
Часть игрушек она сейчас утащила играть на кухню, поэтому пустые полки 😉
08.05.2019
Ответить
Мечта
У меня билли, как вы говорите «по монтессори», выглядит вот так (после уборки выглядит куда лучше, но фото только такое)):
Можно ещё дверцы поставить.
Кмк, это самое бюджетное, что бывает 😄 (нам оптимально- мы в мечтах и планах о переезде), наверняка есть детская мебель интереснее) но этот вариант - вполне удобный. Длина у нас во всю стену 4м- на вырост)
Можно ещё дверцы поставить.
Кмк, это самое бюджетное, что бывает 😄 (нам оптимально- мы в мечтах и планах о переезде), наверняка есть детская мебель интереснее) но этот вариант - вполне удобный. Длина у нас во всю стену 4м- на вырост)
08.05.2019
Ответить
Ланна
Труфаст, каллакс - отличные решения для детской. Ребенку самому очень удобно пользоваться
08.05.2019
Ответить
Ирина Калинина
Для хранения мне понравился вот это гараж , если у вас мальчик очень актуально. И мешок коврик для всяких конструкторов.
08.05.2019
Ответить
Вот такие